

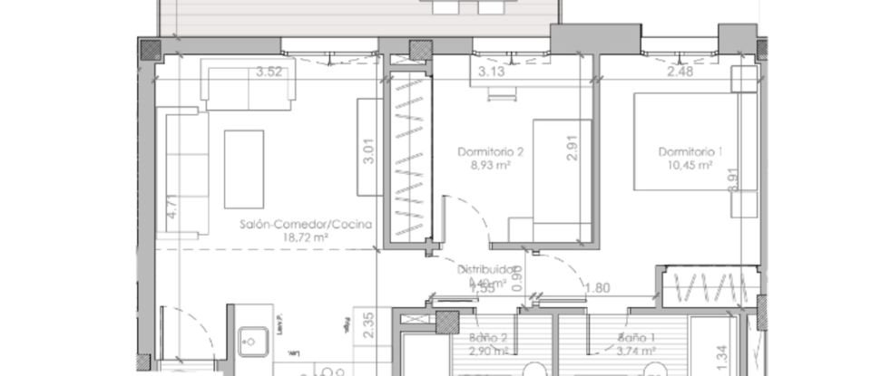
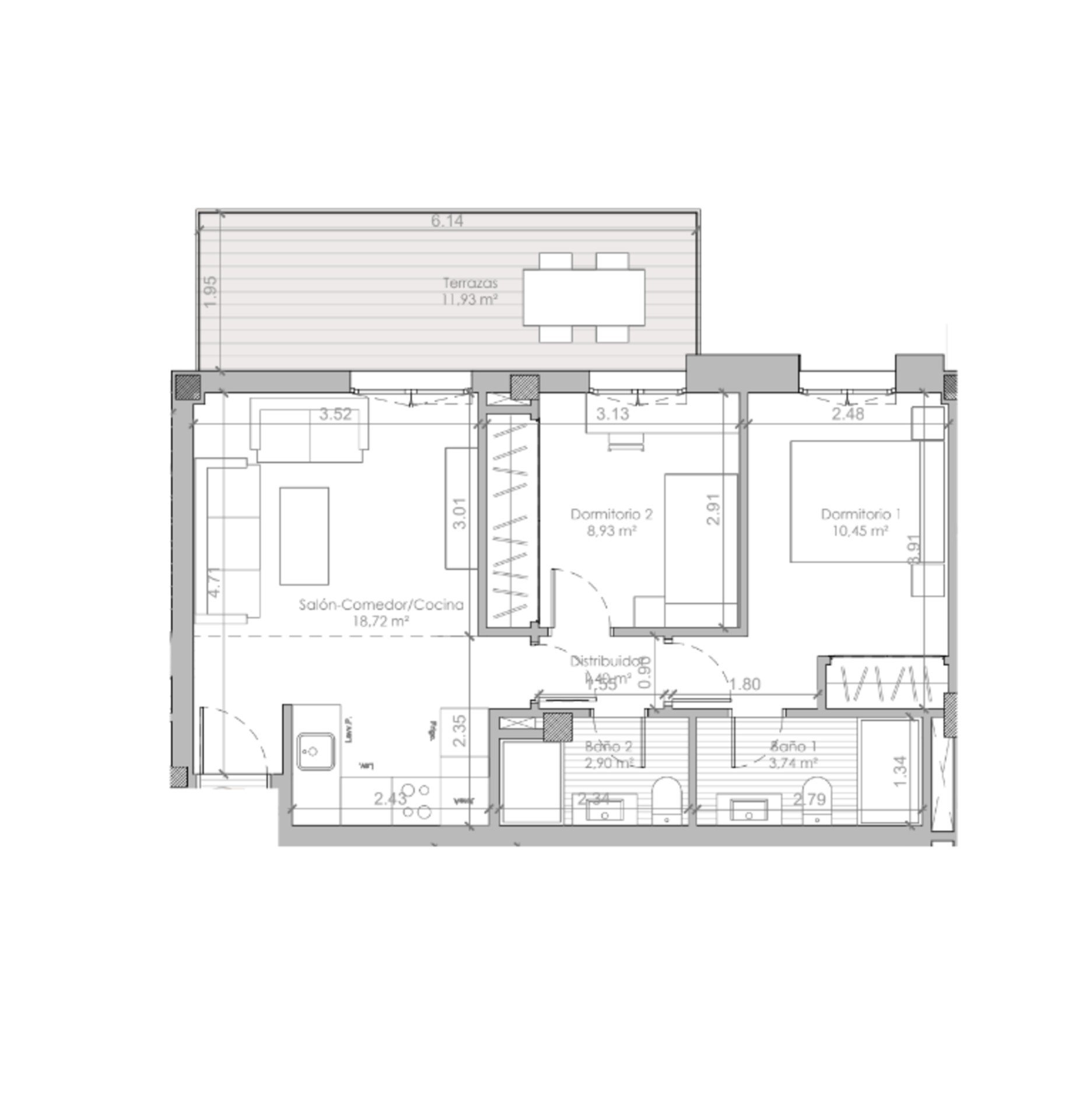
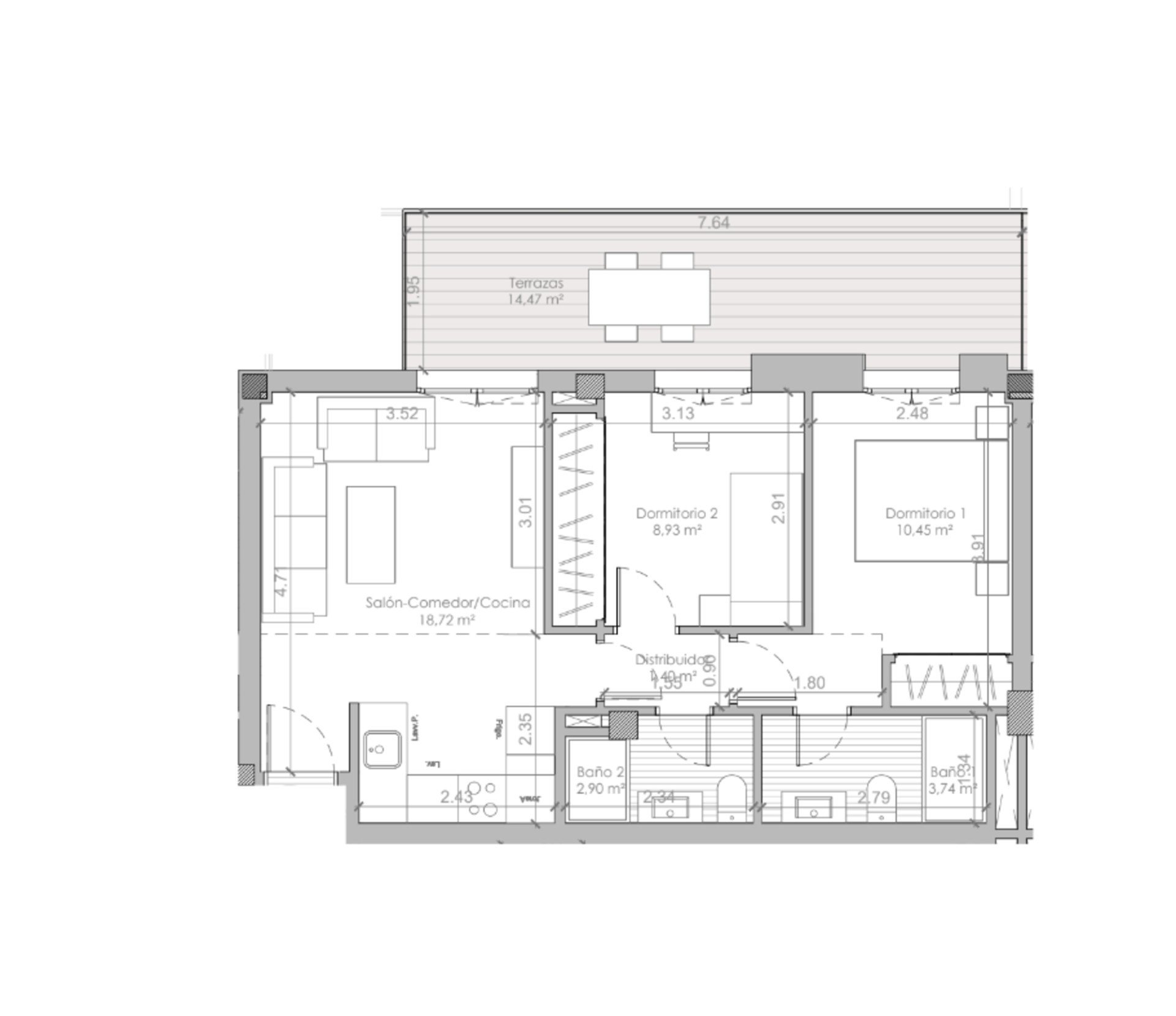
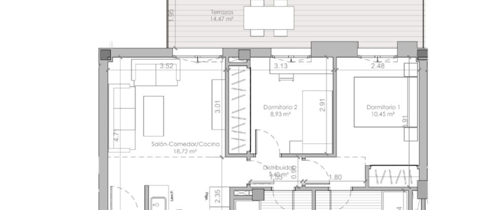
Descubre Premier Residential, una nueva promoción situada en el corazón de Las Lagunas de Mijas, en una ubicación estratégica entre Fuengirola y Mijas. Este moderno proyecto ofrece viviendas de 2 a 3 dormitorios, diseñadas para ofrecer el equilibrio perfecto entre calidad de vida, comodidad, estilo y potencial de revalorización a largo plazo. Pensado para disfrutar al máximo de la vida al aire libre con total seguridad, Premier Residential cuenta con una piscina comunitaria rodeada de jardines paisajísticos, amplias terrazas soleadas, acceso peatonal y vehicular con sistemas de interfono modernos, aparcamiento subterráneo con trasteros, y espacio para bicicletas con fácil acceso a senderos peatonales y carriles bici. Los interiores han sido cuidadosamente diseñados para maximizar el espacio, la luz natural y el confort. Todas las viviendas ofrecen distribuciones amplias y funcionales, con terrazas ideales para cenas al aire libre. Las plantas bajas cuentan con jardín privado y los áticos ofrecen, opcionalmente, piscina privada. Las viviendas están equipadas con ventanas de doble acristalamiento para mayor eficiencia energética y aislamiento acústico, aire acondicionado frío/calor y sistema de Aerotermia para un consumo reducido durante todo el año. Las cocinas están completamente equipadas con electrodomésticos de alta gama y mobiliario moderno, y los baños cuentan con acabados elegantes y opciones de personalización. La ubicación es inmejorable: a poca distancia de tiendas, restaurantes y todos los servicios. Las playas de Fuengirola y sus animados clubes de playa están a menos de 10 minutos. Con acceso directo a las autopistas A-7 y AP-7, se puede llegar fácilmente a Marbella y Málaga. Cerca de campos de golf, centros comerciales, el futuro hospital de Mijas y el Gran Parque de la Costa del Sol, un gran espacio verde de 350.000 m² con lago navegable, skatepark, zonas deportivas, parque acuático, anfiteatro y áreas de picnic. A solo 20 minutos del Aeropuerto Internacional de Málaga, esta promoción representa una oportunidad única tanto como residencia principal o secundaria como inversión inmobiliaria. Contáctanos para más información, planos, precios y disponibilidad. Estaremos encantados de ayudarte.
Referència: 142607
Propietats similars




Ciutats a prop
Altres tipus de propietats a Mijas
Altres tipus de propietats a prop
Altres projectes a Mijas