Casa/villa 1 habitació de 61 m² a L'Hospitalet de Llobregat (08904)
Característiques
Sobre aquesta casa de 1 habitació at L'Hospitalet de Llobregat (08904)
🏡 Casa adossada amb terrassa a La Torrassa – L’Hospitalet de Llobregat
Descobreix un habitatge únic i amb encant, recentment reformada, dins d’un conjunt de petites cases al barri de La Torrassa, una zona tranquil·la i ben comunicada de L’Hospitalet de Llobregat, a pocs minuts de Barcelona.
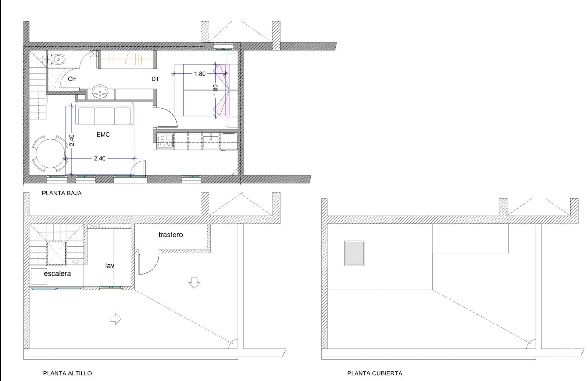
📐 Superfície construïda: 46 m² d’habitatge + 30 m² de terrassa
📍 Ubicació: a prop de metro (L1 Santa Eulàlia , L5 Collblanc i L9 directe a l’aeroport), comerços i tots els serveis
🚪 Distribució:
Planta baixa: saló-menjador amb cuina integrada, 1 dormitori doble i bany complet
Primera planta: espai d’oficina amb accés directe a una terrassa privada de 30 m², un racó perfecte per relaxar-se
✨ Estat: habitatge reformat a gust, llest per entrar a viure
🌿 Extres:
✔️ Terrassa de 30 m²
✔️ Aire condicionat i calefacció
💖 Beneficis:
Una llar atípica i singular, ideal per a qui valora la tranquil·litat i el caràcter especial de viure en un conjunt de casetes amb aire de poble, però amb tots els avantatges d’estar a prop de Barcelona.
📩 Sol·licita més informació i agenda la teva visita.
Equipaments
Interior
Altre
Consum d'energia
Consum d'energia:
Emissions:
Aquesta casa es troba a L'Hospitalet de Llobregat (08904).


















