Châlet 5 chambres de 300 m² à Balea (36988)
Atouts
À propos de cette maison de 5 chambres à O Grove (36988)
🌟 Opportunité exclusive à O Grove : villa mitoyenne dans le complexe touristique Raeiros
Vous recherchez une maison spacieuse, moderne et tout confort dans un cadre privilégié en bord de mer ? Voici l'occasion rêvée.
Part de participation à vendre dans le prestigieux complexe touristique Raeiros, à O Grove. Une spectaculaire villa mitoyenne de 300 m² construits, au design fonctionnel et élégant, conçue pour profiter d'un confort maximal tout au long de l'année.
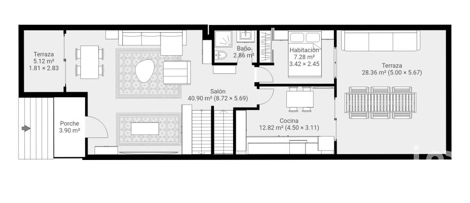
🏡 Distribution :
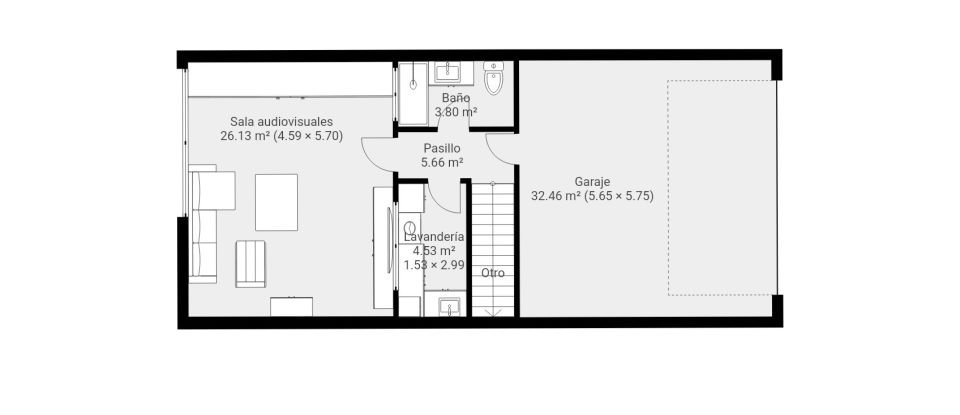
• Sous-sol : garage pour deux véhicules, grande chambre ou pièce polyvalente, buanderie et salle de bains.
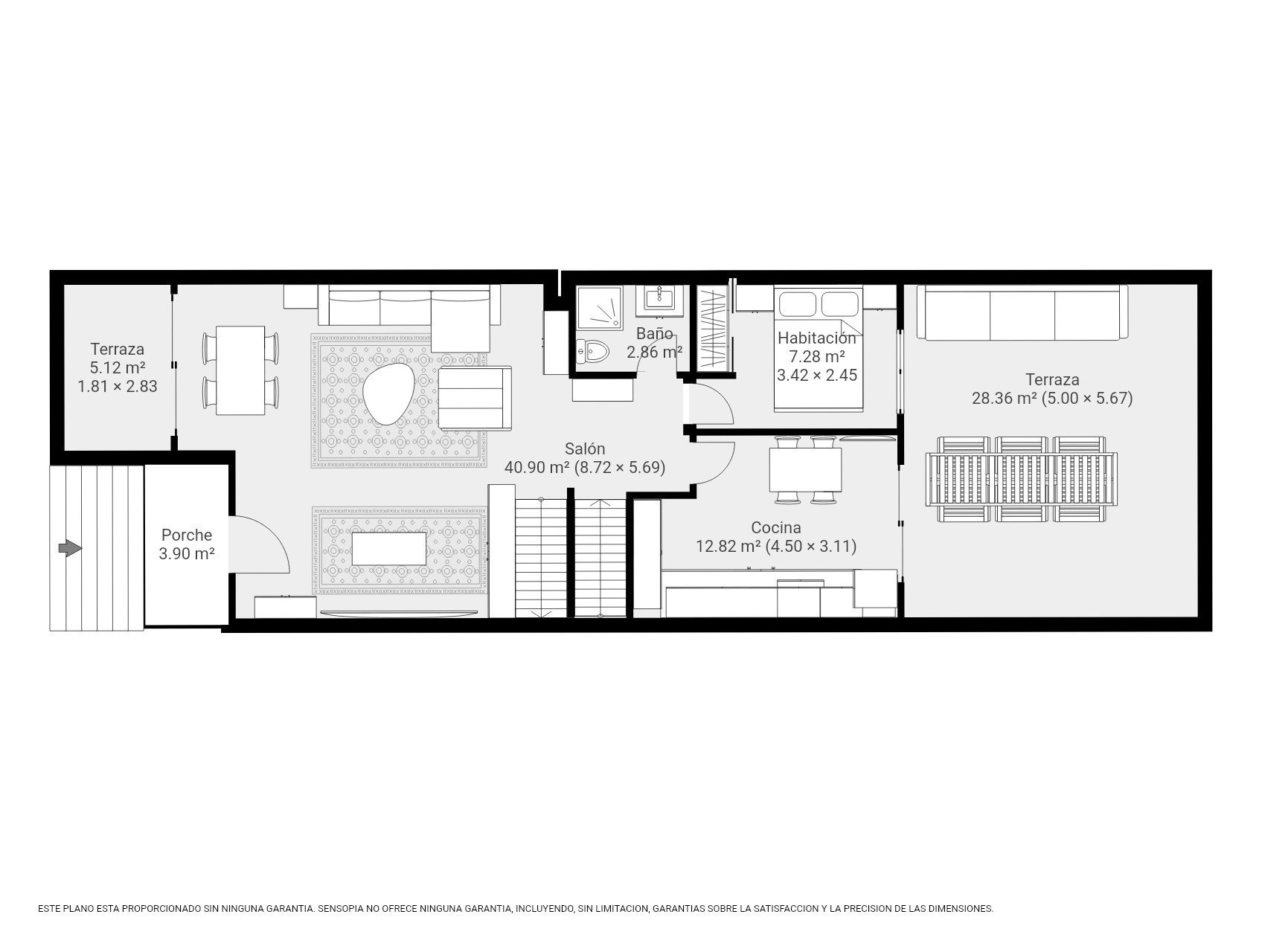
• Rez-de-chaussée : grand salon-salle à manger, cuisine entièrement équipée, une chambre, une salle de bains et deux terrasses (dont une très grande avec vue sur la mer).
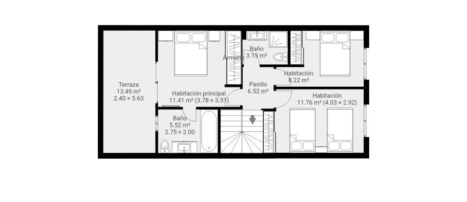
• Premier étage : chambre principale en suite avec grande terrasse vue mer, deux chambres supplémentaires et deux salles de bains complètes.
• Grenier : bureau/studio et espace de rangement.
✨ Caractéristiques principales :
• 5 chambres.
• 4 salles de bains complètes.
• Bureau indépendant, idéal pour le télétravail.
• 3 terrasses.
• Jardin privé.
• Domotique, chaîne hi-fi, volets automatiques, détecteurs de fumée.
• Chauffage individuel et climatisation.
🌿 Parties communes du complexe :
• Deux piscines extérieures d'eau froide et piscine intérieure chauffée de type spa.
• Court de padel, court de tennis et court de squash.
• Vaste espace vert et espaces extérieurs.
• Plus de 34 000 m² de lotissement privé.
• Cafétéria-restaurant dans le complexe.
• Sécurité / gardien 24h/24, 7j/7, 365j/an.
🌊 Environnement privilégié :
• À quelques pas seulement de la plage de Raeiros.
• Vues imprenables sur la mer et l'île d'Ons.
• Zone calme et bien desservie, à proximité de tous les services, activités de plein air, commerces et restaurants.
Cette propriété est idéale comme résidence principale ou secondaire, alliant emplacement, confort et style dans l'une des destinations les plus prisées des Rías Baixas.
Ne manquez pas l'occasion d'acquérir ce joyau immobilier à O Grove. Contactez-nous pour plus d'informations ou pour organiser une visite. Nous vous attendons pour vous faire découvrir votre nouvelle maison en bord de mer !
Ezequiel Dovalo 6 2 2 4 8 9 7 9 8
iad Espagne
Équipements
Intérieur
Extérieur
Autre
Bilan énergétique
Consommation énergétique :
Émissions de gaz à effet de serre :
Cette maison/villa est située à O Grove (36988).

