Appartement en maison 4 chambres de 237 m² à Sant Pere de Ribes (08810)
Atouts
À propos de cette maison de 4 chambres à Sant Pere de Ribes (08810)
Programme neuf prêt à habiter – dernières 6 maisons disponibles.
Situé à Mas Alba (Sant Pere de Ribes), ensemble de 9 maisons mitoyennes modernes et durables. 3 déjà vendues; il en reste 6 disponibles, dont 2 en angle.
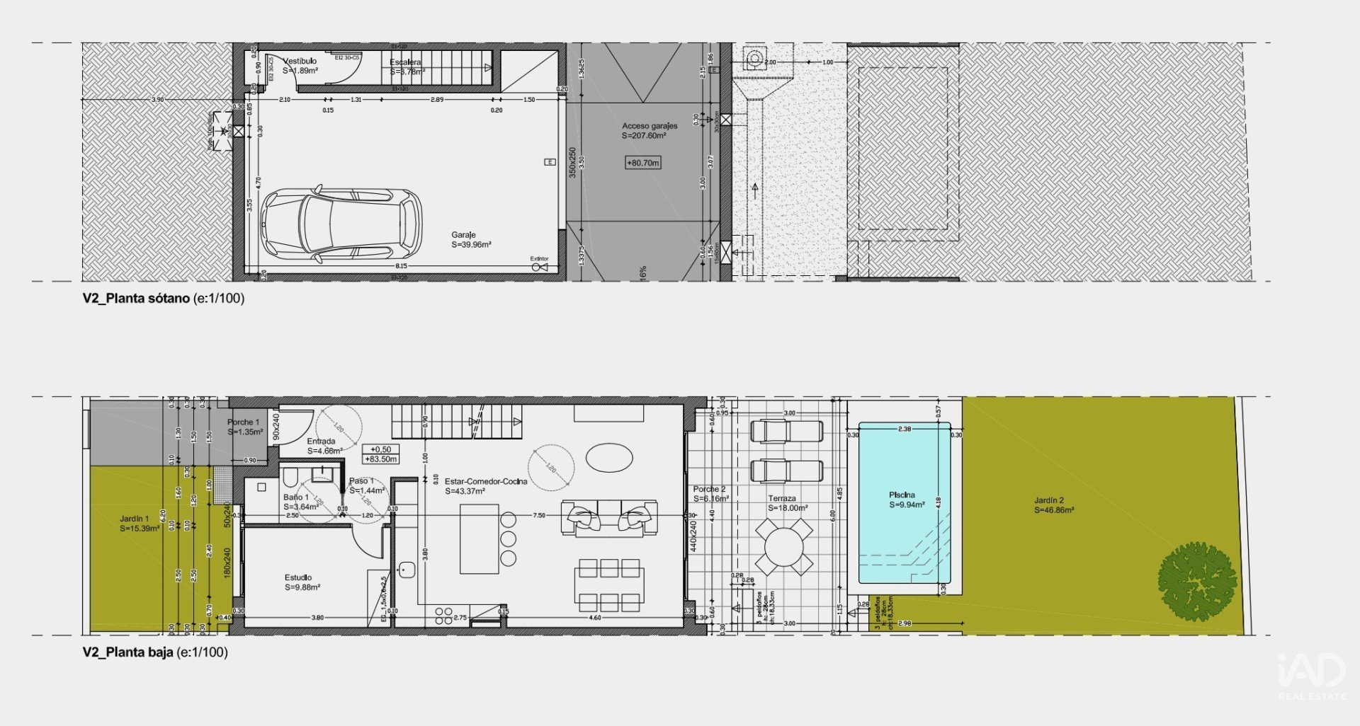
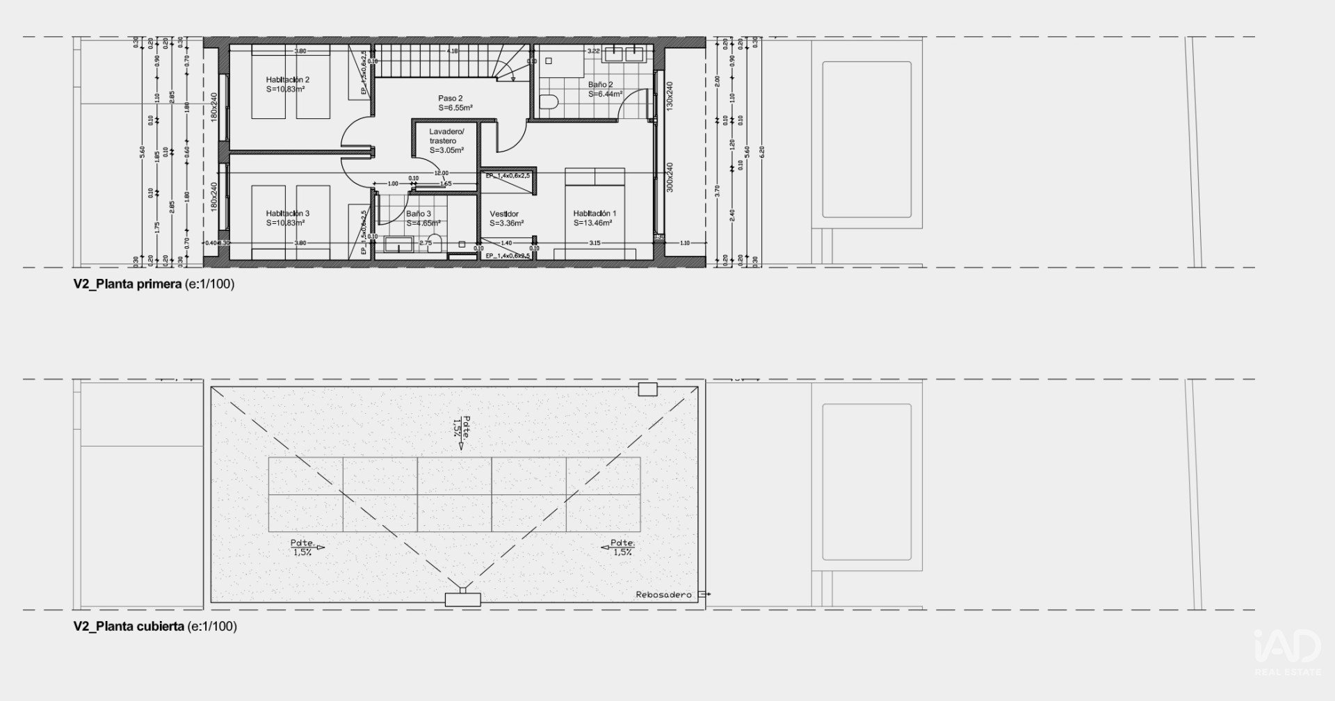
Distribution: 4 chambres (dont une au rez-de-chaussée avec salle de bain adaptée), vaste séjour-salle à manger avec accès direct à la terrasse et au jardin. À l’étage, suite parentale avec salle de bain et dressing, plus deux chambres et une autre salle de bain complète. Buanderie indépendante et garage pour 2 voitures avec accès direct.
Équipements: panneaux solaires, aérothermie, chauffage au sol, climatisation par conduits, adoucisseur d’eau, piscine privée chauffée au sel.
Emplacement en pleine nature, dans le Parc Naturel du Garraf, à seulement 3 km de Sitges et de ses plages. Calme et confort à proximité de tous les services et de Barcelone.
Contactez-nous pour visiter votre future maison.
Équipements
Intérieur
Extérieur
Autre
Bilan énergétique
Consommation énergétique :
Émissions de gaz à effet de serre :
Cette maison/villa est située à Sant Pere de Ribes (08810).
















