
- Nouveau
185 000 €
Maison à Calasparra
- 3 chambres
- 2 salles de bain
- 150 m² de surface brute
- 525 m² de terrain


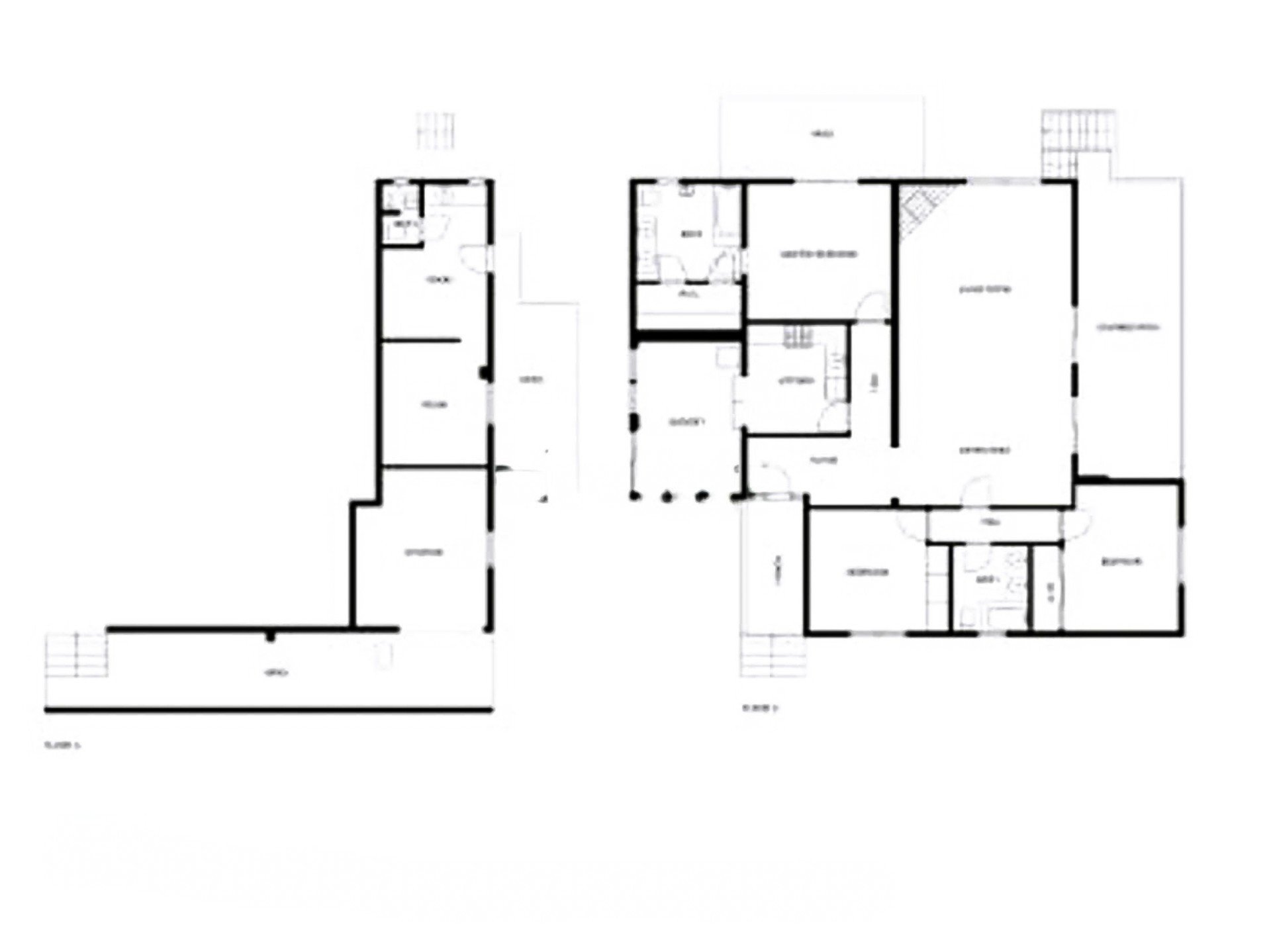
OPPORTUNITÉ UNIQUE À MARBELLA, El REAL PANORAMA: EXCELLENT PROJET DE RENOVATION AVEC UN GRAND POTENTIEL. Parcelle d’angle de 662 m² avec maison individuelle située dans l’un des quartiers résidentiels les plus calmes et exclusifs de l’Est de Marbella. Construite en 1985 et partiellement rénovée, cette propriété se répartit sur deux niveaux et offre un énorme potentiel de rénovation ou d’agrandissement. 📍 Localisation • - À seulement 10 minutes à pied de la plage • - À 5 minutes en voiture du centre de Marbella • - Orientation ouest depuis la terrasse principale, avec fantastique vue panoramique. Distribution actuelle • - 150 m² au rez-de-chaussée + 34 m² de porches + 45 m² en sous-sol • - Salon principal avec cheminée, hauts plafonds, climatisation et accès à une terrasse couverte • - Cuisine indépendante avec porche fermé et accès direct au jardin • - 3 chambres au rez-de-chaussée : o - Une chambre en suite avec accès au jardin o - Deux chambres avec armoires encastrées et salle de bain partagée • - Sous-sol semi-enterré : 2 pièces + salle de douche, avec accès direct au jardin • - Débarras • - Grand jardin avec possibilité de construire une piscine Potentiel urbanistique • - Possibilité de construire une villa de 2 étages + sous-sol • - Constructibilité : 0,35 m/m² • - Occupation maximale : 40 % (PGOU-86 Marbella) Idéal pour investisseurs ou familles recherchant un projet de rénovation dans un emplacement privilégié. 📞 NE LAISSEZ PAS PASSER CETTE OPPORTUNITÉ UNIQUE À MARBELLA. CONTACTEZ-MOI POUR PLUS D’INFORMATIONS OU POUR ORGANISER UNE VISITE.
Réf : 139263
Biens similaires

185 000 €


227 000 €


1 720 000 €


225 000 €
