Duplex 5 bedrooms of 216 m² in Terrassa (08221)
Features
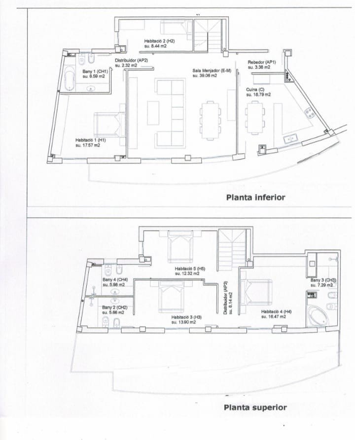
About this apartment of 5 bedrooms at Terrassa (08221)
ATICO DUPLEX CON PARQUING EN VENTA
Ático dúplex en venta ubicado en el centro de Terrassa, a pocos minutos de la estación de tren. Un edificio construido en 1999, con ascensor y plaza de parquing incluida. Distribución que aprovecha al máximo sus 216 m2 construidos (194 m2 útiles). El apartamento ha sido completamente renovado y está listo para entrar a vivir.
Planta principal (a la altura del segundo piso del edificio): Cocina tipo office con salida a un balcón interior, que mantiene el silencio y evita ruidos de la calle gracias a su orientación interior. Un elegante salón-comedor, ideal para reuniones y vida diaria. En esta planta se ubica también una habitación individual y una habitación doble, además de un baño completo con bañera. La distribución transmite confort y funcionalidad, con un ambiente luminoso y tranquilo gracias al balcón interior.
Planta superior: en esta segunda planta se disponen tres habitaciones dobles en formato suite. La habitación principal destaca por su suite privada, que cuenta con ducha y zona de jacuzzi, creando un espacio de descanso muy agradable. Todas las habitaciones mantienen un estilo moderno y práctico, pensado para el uso diario y la intimidad.
Detalles añadidos: el suelo es de parquet, la calefacción es por radiadores para una climatización eficiente. En la gran terraza exterior encontrarás una lavandería y una bonita pérgola de madera, perfectas para aprovechar el aire libre en días soleados.
En resumen, una vivienda dúplex de alto standing, lista para entrar a vivir, con zonas de día y de sueño bien definidas, acabados modernos y una terraza amplia que complementa su oferta en el centro de Terrassa.
No dude en contactar para más información o concertar una visita.
Equipments
Indoor
Outdoor
Other
Energy efficiency
Energy consumption :
Greenhouse gas emission :
This apartment is located at Terrassa (08221).


















