Estudio 3 habitaciones de 102 m² en Sant Antoni de Calonge (17252)
Características
Sobre este piso de 3 habitaciones en Calonge i Sant Antoni (17252)
EXCEPCIONAL APARTAMENTO RENOVADO EN CALA CRISTUS, EN LA COSTA BRAVA.
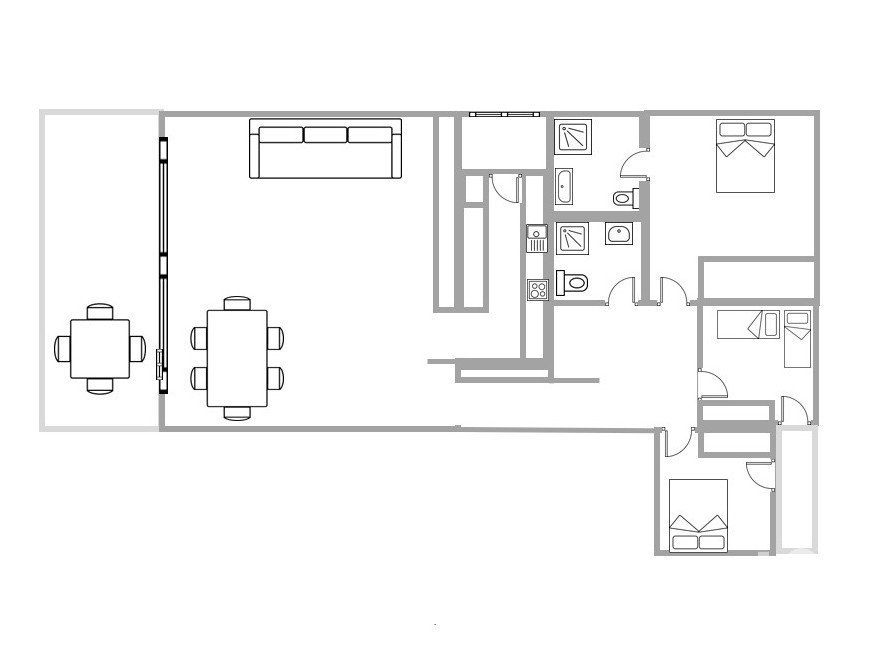
Bienvenido a tu refugio junto al mar en Calonge i Sant Antoni. Este apartamento totalmente renovado de 113m² ofrece un estilo de vida elegante y cómodo en un entorno costero privilegiado. Con 1 suite con baño y 2 dormitorios con un segundo baño compartido, este apartamento es perfecto para disfrutar de unas vacaciones de ensueño o para residir permanentemente cerca del mar Mediterráneo.
Este apartamento dispone de Licencia turística y tiene una alta rentabilidad como tal.
Características destacadas:
- Sala luminosa y acogedora para disfrutar en familia.
- Cocina equipada para preparar deliciosas comidas junto a tus seres queridos.
- 2 terrazas para disfrutar del clima cálido y un amplio jardín comunitario de 2600m2..
- Ubicación a solo 200 metros de la hermosa Playa Cala Cristus para relajarse en la arena y disfrutar del agua cristalina.
- Conexión de fibra óptica para mantenerse conectado en todo momento.
Este apartamento luminoso y moderno se encuentra en un edificio de 3 plantas con una ubicación ideal en una residencia cerrada con un gran jardín comunitario. Esta comunidad dispone de pista de tenis y espacio exterior para aparcar. El año de construcción en 1974 demuestra la durabilidad y el encanto atemporal de esta propiedad, que ha sido renovada con atención al detalle para ofrecer un espacio contemporáneo y acogedor.
Con puntos de interés como Sant Antoni de Calonge y Calonge a solo unos kilómetros de distancia, tendrás acceso a una variedad de opciones culturales, gastronómicas y de entretenimiento. Además, la cercanía de la playa Cala Cristus te brinda la oportunidad de disfrutar del mar Mediterráneo siempre que lo desees.
El apartamento cuenta con una terraza principal que ofrece exposición al sur, lo que te permite aprovechar al máximo la luz natural y disfrutar de un clima cálido durante gran parte del año.
No pierdas la oportunidad de adquirir este exclusivo apartamento en Calonge i Sant Antoni. ¡Contáctanos hoy para programar una visita y descubrir tu nuevo hogar junto al mar!
Equipos
Interior
Exterior
Otro
Certificado energético
Consumo de energía :
Emisiones :
Este piso se encuentra en Calonge i Sant Antoni (17252).





