Piso 3 habitaciones de 90 m² en Barcelona (08017)
Características
Sobre este piso de 3 habitaciones en Barcelona (08017)
Apartamento en venta en el barrio de Vallvidrera en un entorno natural de Collserola a pocos minutos en tren de Plaza Cataluña centro de Barcelona, Ciudad Condal.
90 metros cuadrados que se pueden volver a distribuir ya que todas las paredes son tabiques. Fotos de renders para proyectar una reforma.
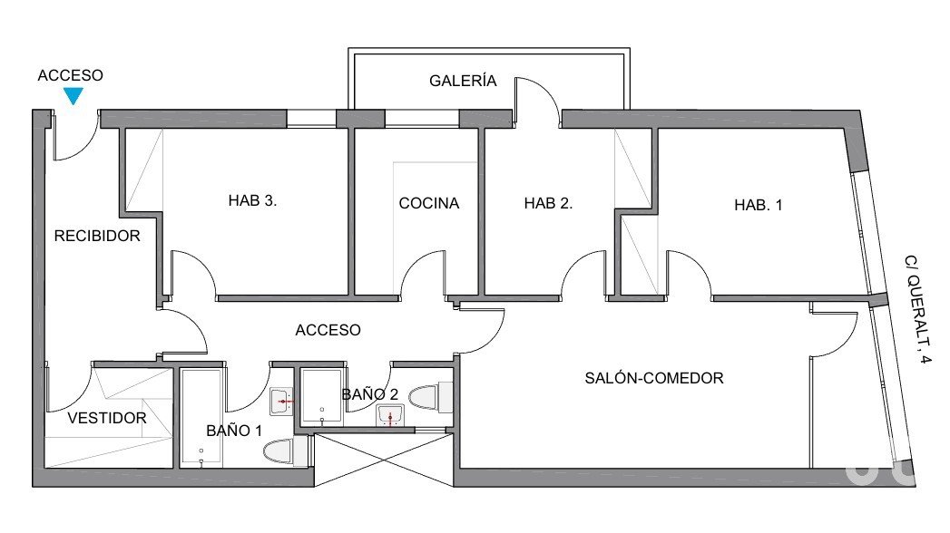
Este inmueble cuenta con cinco estancias diseñadas para ofrecer el máximo confort y calidad de vida. Con 3 amplios dormitorios y 2 baños completos, cada espacio ha sido cuidadosamente planificado para brindar comodidad y funcionalidad a sus residentes.
Ubicado en un edificio de 4 plantas con ascensor, este apartamento se encuentra en el primer nivel, lo que facilita el acceso y la movilidad. Construido en 1969, se mantiene en buen estado de conservación, ofreciendo un ambiente acogedor y actual. Con una orientación al norte, disfrutarás de una agradable iluminación natural y frescura durante todo el año.
La distribución de las estancias incluye una cocina independiente, equipada con todo lo necesario para preparar deliciosas comidas, y un amplio salón que invita al relax y al disfrute en compañía. Los 3 dormitorios ofrecen un espacio privado para el descanso, mientras que los 2 baños completos garantizan comodidad y privacidad para toda la familia.
Este apartamento cuenta con comodidades importantes como ascensor, acceso adaptado para personas con movilidad reducida e interfono para garantizar la seguridad y tranquilidad de sus habitantes. Además, el sistema de calefacción por radiadores asegura un ambiente cálido y acogedor en todo momento.
En cuanto a los alrededores, este inmueble se encuentra cerca de la carretera de las aguas para dar un paseo y disfrutar de las vistas impresionantes. A poca distancia, encontrarás supermercados, bancos, biblioteca, panadería, transporte público, restaurantes, clínicas dentales, farmacias y peluquerías, proporcionando una conveniencia adicional a tu día a día.
Este apartamento, a pesar de no disponer de parking ni garaje, se encuentra en una zona bien comunicada y con facilidades de transporte público, lo que lo convierte en una excelente opción para aquellos que desean vivir en una ubicación privilegiada en Barcelona.
¡No dejes pasar esta oportunidad de adquirir este acogedor apartamento en una de las ciudades más vibrantes de Europa! Contáctanos hoy para más información y organizar una visita. ¡Te esperamos!
Sin honorarios para el comprador.
Equipos
Interior
Otro
Certificado energético
Consumo de energía :
Emisiones :
Este piso se encuentra en Barcelona (08017).



















