Piso 2 habitaciones de 61 m² en Oropesa/Oropesa del Mar (12594)
Características
Sobre este piso de 2 habitaciones en Oropesa del Mar (12594)
APARTAMENTO EN 2DA LINEA DE PLAYA CON VISTAS A LA MONTAÑA - 2 DORMITORIOS -TERRAZA - PISCINA - PARKING - TRASTERO
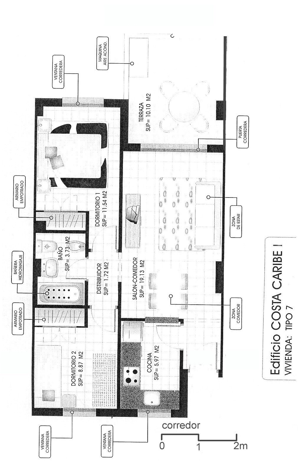
Acogedor apartamento en Marina d’Or – Edificio Costa Caribe, situado en 4ª planta y orientado al sur, con maravillosas vistas abiertas a la montaña.
La vivienda cuenta con 2 dormitorios dobles con armarios empotrados, baño completo renovado con ducha, cocina independiente totalmente equipada y amueblada, y un luminoso salón-comedor con salida a una amplia terraza, parcialmente ampliada, perfecta para disfrutar de la tranquilidad y el verde de la naturaleza. La terraza dispone de toldos y ventilador, creando un espacio ideal para el relax.
Además, el apartamento incluye plaza de parking y trastero, aportando comodidad y funcionalidad.
La urbanización ofrece piscina comunitaria, zonas ajardinadas y área infantil, en un entorno cuidado y familiar.
Su ubicación es excelente: en una zona tranquila, a tan solo un paso de supermercados y servicios, y en segunda línea de playa, lo que permite disfrutar de la costa mediterránea con total comodidad.
Un hogar ideal tanto para vacaciones como para inversión en una de las zonas más demandadas de la costa de Castellón.
MÁS INFORMACIÓN: Lucas Castro iad España
Solicite el tour virtual
Equipos
Interior
Exterior
Otro
Este piso se encuentra en Oropesa del Mar (12594).














