

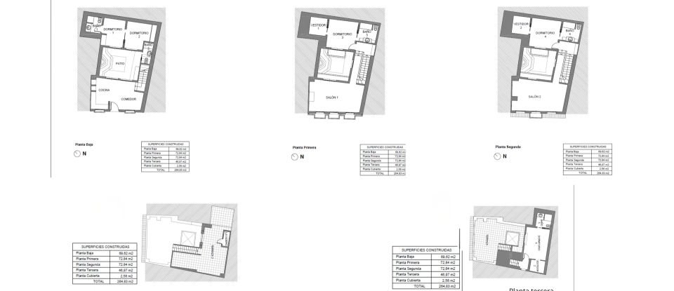
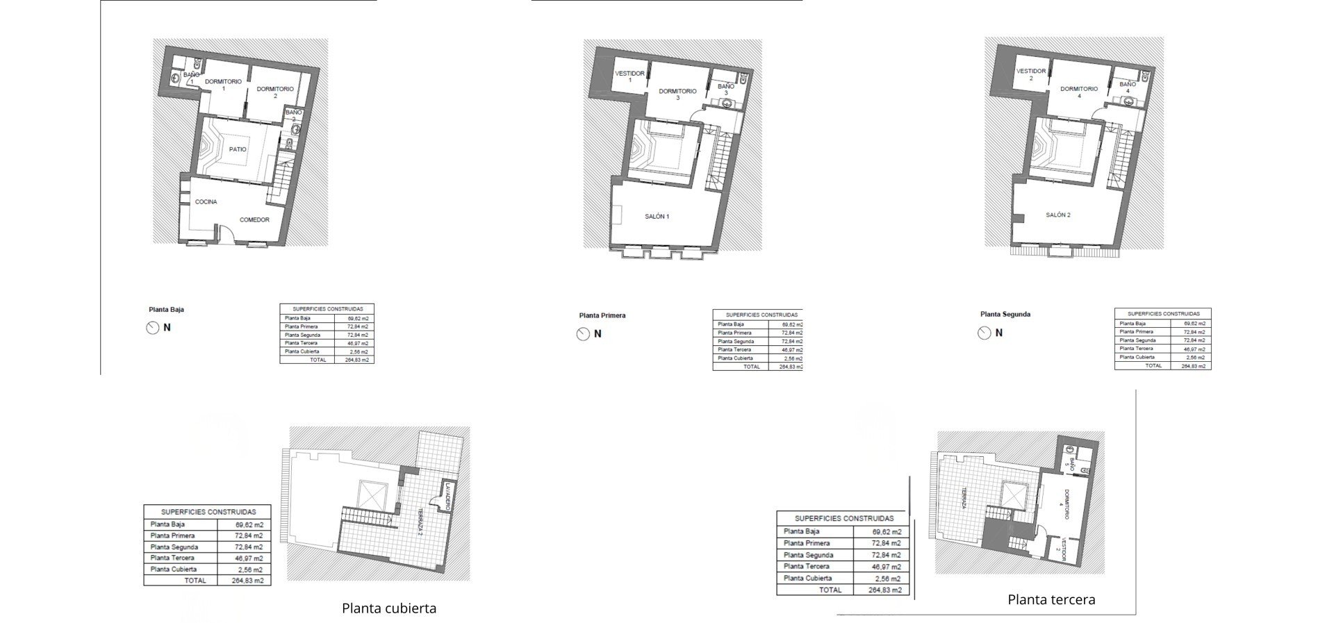
EXCLUSIVA OPORTUNIDAD EN EL CENTRO DE ESTEPONA – CASA DE PUEBLO DE LUJO TOTALMENTE RENOVADA A 200 METROS DEL MAR VIVE O INVIERTE EN UNA JOYA URBANA CON HISTORIA, ESTILO Y MÁXIMO POTENCIAL EN LA COSTA DEL SOL Se ofrece en venta una CASA DE PUEBLO SINGULAR ubicada en una calle peatonal del centro histórico de Estepona, totalmente reformada con calidades modernas, pero conservando el encanto tradicional andaluz. Una propiedad perfecta tanto como residencia privada de lujo como para proyecto turístico boutique o inversión con alta rentabilidad. CARACTERÍSTICAS DE LA PROPIEDAD — Superficie construida: 260 m² — Distribución: Planta baja + 3 plantas + Terraza — Dormitorios: 4 amplios, todos con baño en suite — Baños: 6 en total — Cocina totalmente equipada — Salón comedor luminoso — Jardín y terraza privada 80m2 — Balcones exteriores — Trastero incluido — Orientación: sur y este — Estado: reformada integralmente hace 2 años DISTRIBUCIÓN POR PLANTAS – CONFORT Y FUNCIONALIDAD EN CADA NIVEL Planta baja: Amplio salón-comedor integrado con cocina abierta totalmente equipada, baño completo, y zona de trastero. Primera planta: 2 dormitorios amplios, cada uno con baño en suite, armarios empotrados y balcones exteriores. Segunda planta: Otros 2 dormitorios espaciosos, también con sus respectivos baños en suite, ideales para invitados o familia numerosa. Última planta: Exclusiva terraza con zona de bar, baño adicional y acceso a la azotea superior, donde se encuentra el jacuzzi y área de solárium con vistas abiertas, perfecta para disfrutar del clima mediterráneo durante todo el año. CONFORT Y DETALLES EXCLUSIVOS — Climatización individual por estancia — Armarios empotrados — Espacios abiertos y versátiles — Acabados de alta calidad — Ideal para residencia de lujo o alquiler turístico UBICACIÓN INMEJORABLE EN ESTEPONA — A solo 200 metros de la playa — En pleno centro histórico, zona peatonal y tranquila — A pasos de restaurantes, tiendas, heladerías, clínicas y servicios — Excelente conexión con toda la Costa del Sol IDEAL PARA: — Familias que buscan vivir en una casa amplia y céntrica con carácter — Inversores que desean desarrollar un negocio turístico premium (B&B, boutique hotel) — Compradores extranjeros que sueñan con una segunda residencia con alma andaluza PRECIO: 1.500.000 € (Incluye honorarios de agencia – sin costes adicionales para el comprador) VIVE LA HISTORIA, EL ESTILO Y EL ENCANTO DE ESTEPONA EN UNA CASA ÚNICA CON INFINITO POTENCIAL Para más información o concertar una visita, contáctame por WhatsApp: +34 674 94 64 36
Referencia: 748087
Consumo de energía
98 kWh/m².año
Emisiones
20 kgCO₂/m².año
Propiedades similares


649.000 €



Ciudades cercanas
Otros tipos de propiedades en Estepona
Otros tipos de propiedades cercanas