Casa de pueblo 3 habitaciones de 193 m² en Pego (03780)
Características
Acerca de esta casa/villa de 3 habitaciones en Pego (03780)
Casa de pueblo excepcional de nueva construcción con piscina, ascensor, garaje y totalmente amueblada en el corazón de Pego
*Visita virtual 3D disponible bajo demanda*
Imagina vivir en una casa que lo tiene todo: una ubicación privilegiada en el centro de Pego, a solo 10 minutos de la playa, con diseño ibicenco, un patio espacioso, piscina privada, garaje con cargador para coche eléctrico, ascensor, paneles solares, aire acondicionado reversible, chimenea de leña y espacios llenos de luz natural que irradian calidez mediterránea.
Actualmente en construcción, esta exclusiva propiedad tiene prevista su finalización en junio de 2026 y redefinirá el concepto del hogar mediterráneo moderno. Cada detalle ha sido cuidadosamente diseñado para ofrecer elegancia, confort y funcionalidad, sin perder el encanto y la autenticidad de una casa de pueblo tradicional.
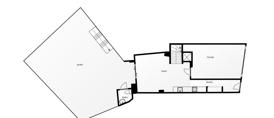
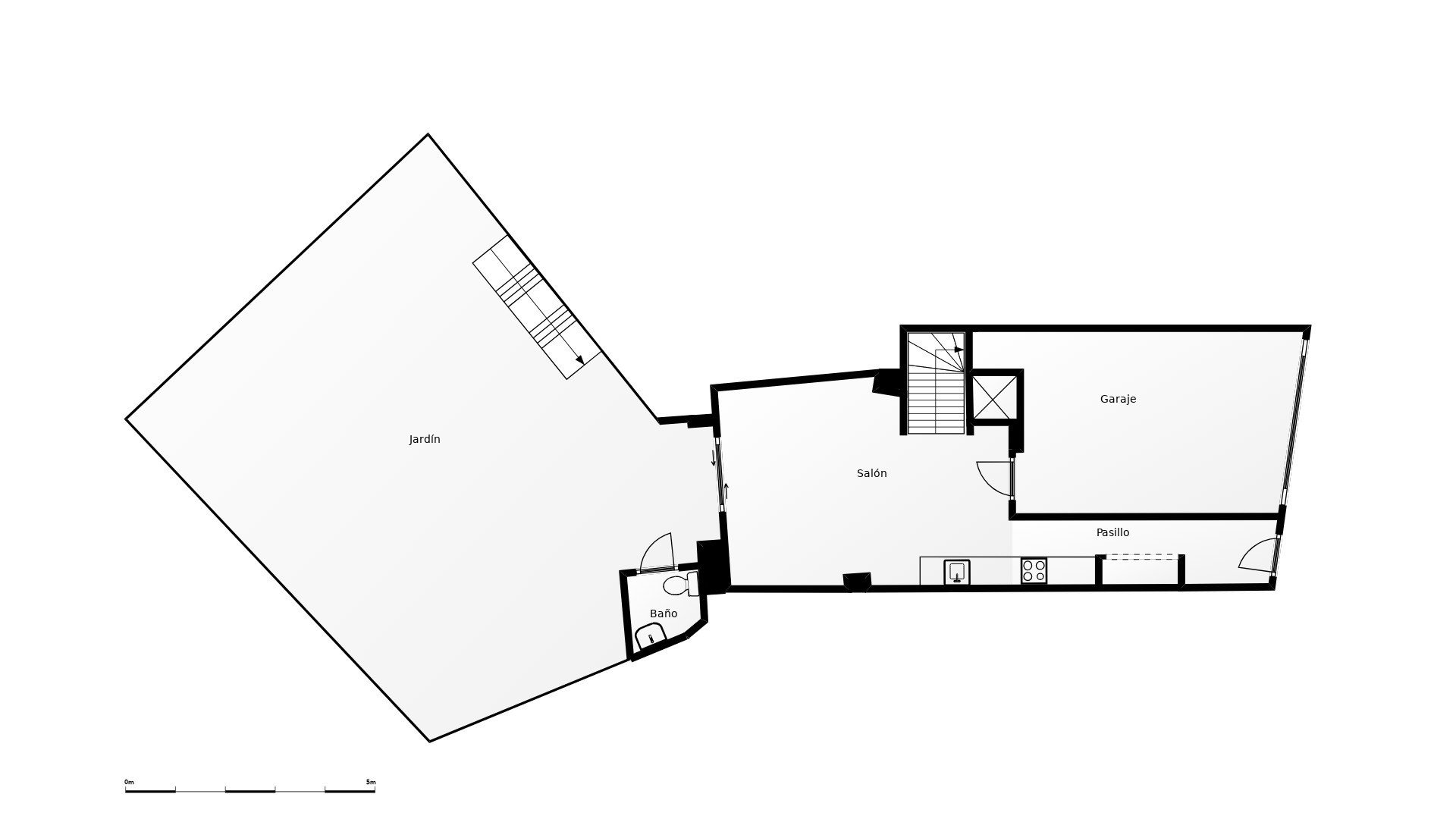
Planta baja: comodidad, conexión y bienestar
Accede desde la calle o directamente desde el garaje a un amplio salón, ideal para compartir momentos con familiares y amigos. La moderna cocina abierta se integra a la perfección con el espacio principal, creando un ambiente práctico y acogedor para la vida diaria.
Un gran ventanal se abre directamente al patio privado, un verdadero oasis exterior que incluye:
-Una piscina privada con ducha exterior.
-Una zona de barbacoa y chill out, perfecta para relajarse o recibir invitados.
-Un patio luminoso y espacioso, ideal para crear tu propio rincón de descanso.
Este nivel también incluye un aseo de cortesía y un ascensor que conecta todas las plantas, una comodidad excepcional que convierte esta casa en un hogar ideal para todas las edades y accesible para personas con movilidad reducida.
El garaje está equipado con un cargador para vehículo eléctrico.
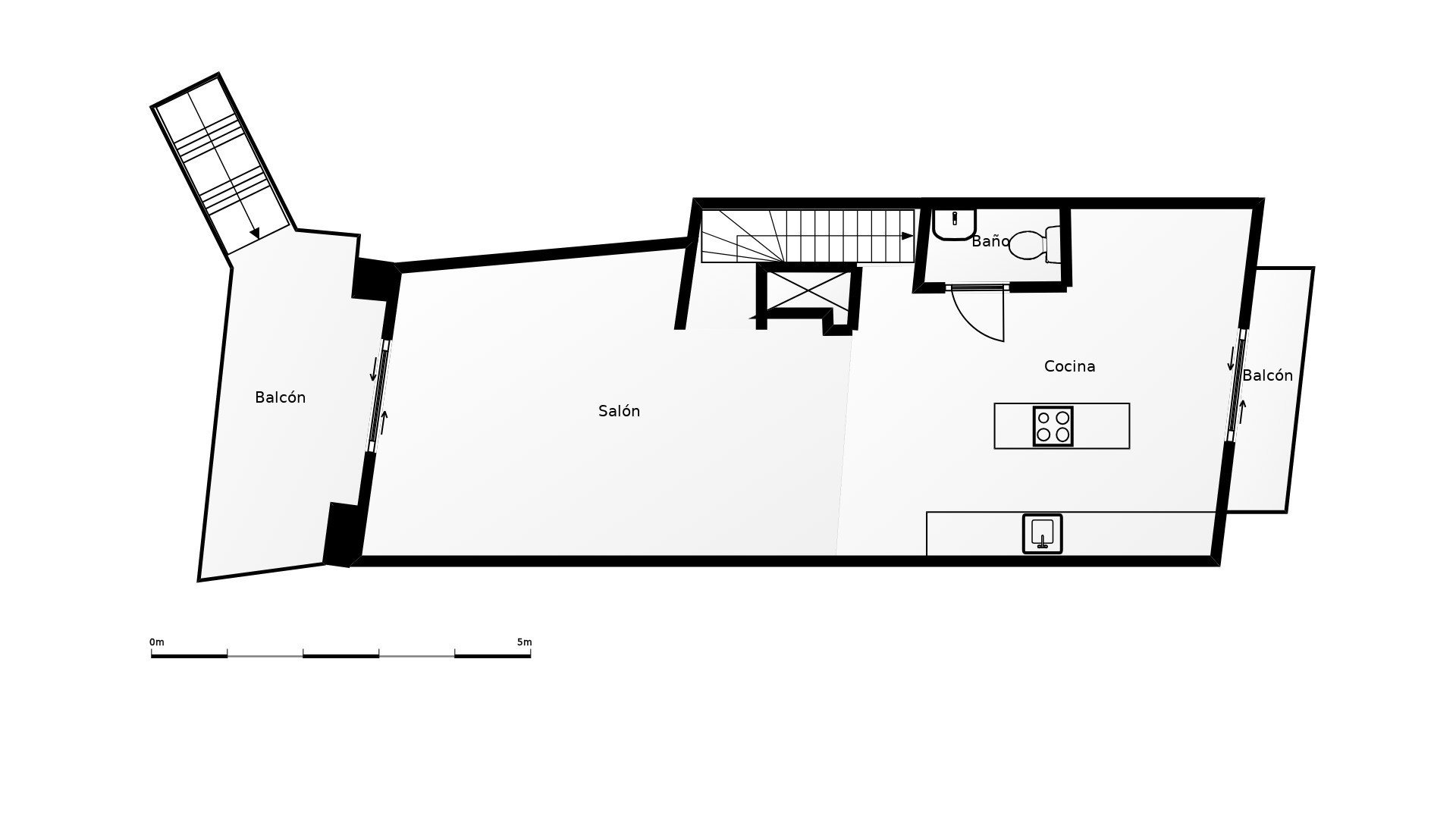
Primera planta: diseño, luz y calidez
Subiendo (por ascensor o escalera), se encuentra el corazón de la casa: una impresionante cocina de diseño con isla central, totalmente equipada y abierta al comedor y al salón.
La chimenea de leña añade un toque cálido y acogedor, creando el ambiente perfecto para las noches de invierno.
Desde aquí, se accede a una soleada terraza, ideal para desayunar, leer o disfrutar de una copa al atardecer.
Una escalera exterior conecta la terraza con el patio y la piscina, integrando de forma armoniosa los espacios interiores y exteriores.
Esta planta también dispone de un aseo de cortesía para mayor comodidad.
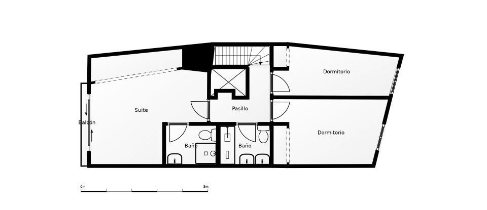
Segunda planta: descanso y privacidad
La planta superior está dedicada al descanso y la relajación, con tres dormitorios luminosos y confortables con armarios empotrados, acabados de alta calidad y un diseño elegante.
El dormitorio principal incluye su propio baño privado, ofreciendo un refugio tranquilo e íntimo.
Los dos dormitorios restantes comparten un baño completo moderno, con una estética refinada y funcional.
Eficiencia, confort y ahorro energético
Esta vivienda apuesta por la sostenibilidad y la eficiencia energética.
Equipada con paneles solares, ofrece un ahorro significativo en las facturas de electricidad y reduce la huella ambiental.
También incluye calefacción individual, aire acondicionado reversible, chimenea de leña, fibra óptica, puerta de seguridad y interfono. Su orientación este, sur y oeste garantiza luz natural durante todo el día, creando un ambiente cálido y acogedor.
Ubicación perfecta
Situada en pleno corazón de Pego, esta propiedad permite disfrutar del auténtico estilo de vida mediterráneo, con tiendas, restaurantes, colegios, mercados, montaña y zonas de ocio a poca distancia a pie.
Y lo mejor de todo, a solo 10 minutos de las playas del Mediterráneo, combinando la tranquilidad del interior con la belleza del mar.
Una casa nueva, de diseño y sostenible, lista para su entrega en junio de 2026. Con piscina, ascensor, garaje con cargador eléctrico, zona de barbacoa y paneles solares, este hogar está diseñado para vivir, disfrutar y ahorrar energía.
Contáctanos para más información, para solicitar tu visita virtual 3D o para visitar la casa en situ.
Equipos
Interior
Exterior
Otro
Esta casa se encuentra en Pego (03780).















