Casa 3 habitaciones de 260 m² en Hinojedo (39350)
Características
Acerca de esta casa/villa de 3 habitaciones en Hinojedo (39350)
OBRA NUEVA CON PISCINA Y ALTAS CALIDADES A LA ENTRADA DE SUANCES
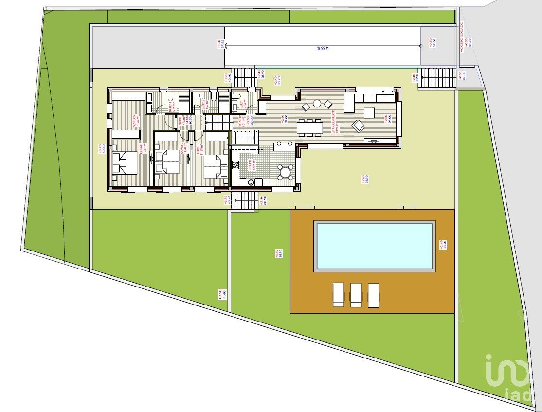
Ubicada en el encantador pueblo de Hinojedo, en un barrio muy cotizado, a la entrada de Suances, les presento esta vivienda de obra nueva ubicada en una parcela de 905 m², en una zona tranquila y rodeada de naturaleza.
La vivienda principal tiene 160 m² construidos, a los que se suman:
Porche cubierto de 42 m²
Garaje cerrado de 44 m² para dos coches
Trastero de 8 m²
Sala de máquinas de 9 m²
Distribución y características principales:
Orientación sur
Certificado de eficiencia energética A
Aerotermia con suelo radiante.
Salón amplio de 43 m²
Cocina independiente de 16 m²
3 dormitorios:
Dormitorio principal tipo suite de 30 m² con baño completo y vestidor
2 dormitorios secundarios de 12 m² cada uno
Otro baño completo + 1 aseo independiente
Piscina privada
Amplia terraza
Promotor con más de 40 años de experiencia en el sector.
Garantía total y sin sorpresas.
Fin de obra prevista para mediados de 2026.
Una oportunidad única en una ubicación excepcional, que combina confort moderno, eficiencia energética y calidad de vida.
Pueden contactarme para concertar una visita y conocer todos los detalles de esta magnífica vivienda.
Régis Lavie – IAD España
Equipos
Interior
Exterior
Otro
Certificado energético
Consumo de energía :
Esta casa se encuentra en Hinojedo (39350).


