Land of 235 m² in Moià (08180)
About this land at Moià (08180)
EXCLUSIVE OPPORTUNITY IN MOIÀ! Semi-detached houses with structure built at 55%
From 195.000 €, Check the video to see the possible finishes!
Are you looking to live surrounded by nature, tranquillity and quality of life... but with a smart investment?
In Moià, 4 semi-detached houses are waiting for you with 55% of the structure already built, ready to be finished to your liking - a real gem for those who want to personalise their home or invest with a vision for the future!
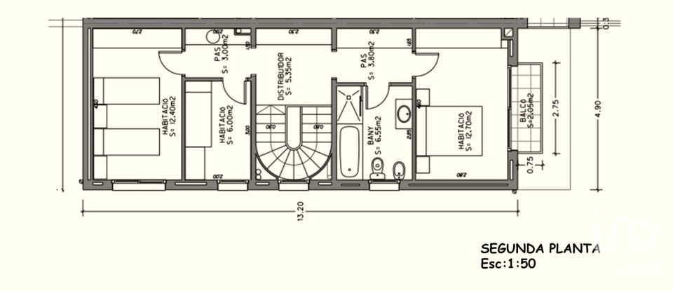
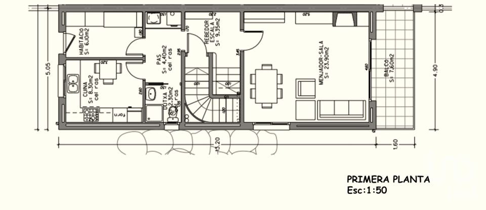
What is it for sale?
This is a sale as a plot of land with work underway. This unit has:
- 235 m² built / 180 m² usable
- 3 bedrooms + 2 bathrooms
- Private garage (53 m²)
- Private garden and green area
- Solid structure: foundations, walls and connections completed
- Pre-installation prepared for electrical and plumbing installations
Designed to offer excellent natural light, good ventilation and open views, right in front of the public school and in a quiet area with green spaces.
Why is this a GREAT OPPORTUNITY?
- Price per unit: 195.000 €.
- Difficult to find property: few plots with structure already built in Moià.
- You avoid demolition costs and you can customize your home from a solid base.
- Work stopped during the crisis (structure preserved in good condition)
- Mortgage advice included (ideal for self-promoters)
- Advice for reactivation of work with the Moia Town Council.
In addition, we offer a free estimate to finish the house with reliable professionals. Check the video to see the possible finishes!
Why live in Moià?
Moià is a place with soul.
Here you will find nature, sport, culture, gastronomy and wellbeing in balance.
- Horse riding, golf, motocross, ultra-light flying, hiking...
- In addition, a growing range of local and organic products from Moianès, in an environment where quality of life is a priority.
At IAD, we are here to accompany you every step of the way. Contact us today to find out more about the project, visit the site and study with you the most suitable financing.
Equipments
Outdoor
This land is located at Moià (08180).




