Casa rústica 4 habitaciones de 145 m² en Pedreguer (03750)
Características
Acerca de esta casa/villa de 4 habitaciones en Pedreguer (03750)
🏡¡Descubre esta encantadora casa unifamiliar en La Sella, Pedreguer, un refugio perfecto para quienes desean vivir en armonía con la naturaleza sin renunciar a la comodidad!
Situada en una parcela totalmente vallada de 1.254 m² y con 145 m² construidos, esta propiedad ofrece un estilo de vida tranquilo en un entorno rural privilegiado, con preciosas vistas a la costa mediterránea.
✨ Distribución y características destacadas:
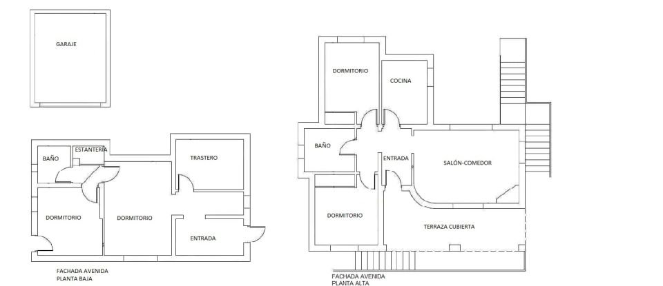
🏠 Primera planta: Funcionalidad y comodidad
La primera planta recibe con una entrada muy acogedora que da paso al trastero, ofreciendo un espacio práctico para almacenamiento, a continuación se encuentra el despacho independiente, ideal para trabajar o estudiar con tranquilidad, seguido de un salón amplio y luminoso que invita a relajarse y disfrutar de momentos familiares, y un baño completo que aporta comodidad y funcionalidad al día a día, creando en conjunto un espacio cálido, versátil y perfectamente conectado con el resto de la vivienda.
🏠 Segunda planta: Elegancia y confort
La planta superior reúne las áreas principales de la casa: un comedor luminoso, una cocina conectada con un salón con chimenea, un dormitorio amplio, un baño completo y espacios exteriores como balcón y terraza que aportan luz y buenas vistas. Es una planta funcional, acogedora y pensada para la vida diaria.
La Sella, Pedreguer, ofrece un entorno tranquilo y exclusivo rodeado de naturaleza, con servicios de primer nivel como su reconocido campo de golf de 27 hoyos, spa, centro ecuestre y pistas deportivas.
A tan solo 7-10 minutos en coche se encuentra Denia, una de las localidades más vibrantes de la zona, ideal para disfrutar de su oferta gastronómica, cultural y comercial. Y además perfectas para disfrutar del mar Mediterráneo sin largas distancias ni aglomeraciones.
En cuanto a conexiones nacionales e internacionales, el Aeropuerto de Alicante está a unos 100 km, lo que equivale a aproximadamente una hora en coche, facilitando los desplazamientos para residentes y visitantes.
Todo esto convierte esta propiedad en una opción ideal tanto como residencia habitual, segunda vivienda o inversión.
¡No pierdas la oportunidad de conocer esta joya arquitectónica!
Contáctanos para más información y agenda tu visita. ✨📞
Equipos
Exterior
Otro
Esta casa se encuentra en Pedreguer (03750).
















