Immeuble de 1 902 m² à Adina (36979)
Atouts
À propos de ce bien à usage commercial à Adina (36979)
🏗️ Immeuble en construction avec projet pour 21 appartements touristiques – Sanxenxo
Immeuble en construction à vendre avec projet de base approuvé pour sa transformation en 21 appartements touristiques clés en main. Un investissement stratégique en plein cœur des Rías Baixas.
📍 Emplacement privilégié
À 3 min de Sanxenxo, principale destination touristique de Galice.
À 4 min de Portonovo, village de pêcheurs avec une grande tradition hôtelière.
À 5 min de la plage d'A Lanzada, l'une des plus réputées de la région.
Entouré de plages Pavillon bleu, de ports de plaisance, d'itinéraires œnologiques et gastronomiques de renommée internationale.
🏢 Caractéristiques de la propriété
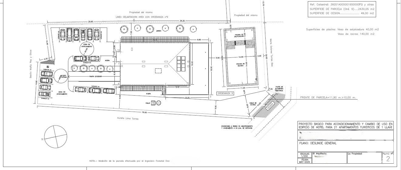
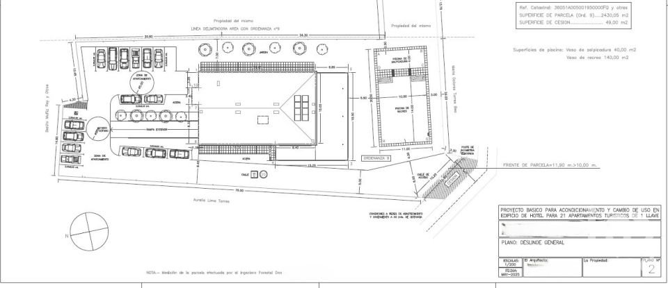
Terrain de plus de 6 400 m² offrant de nombreuses possibilités.
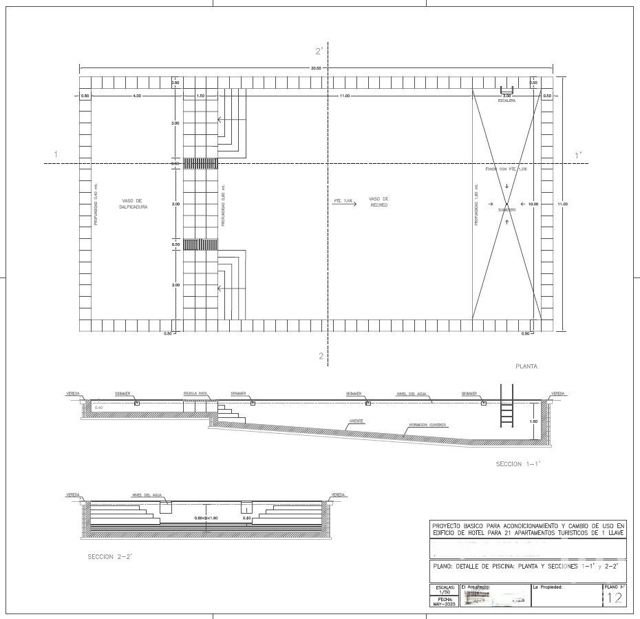
Piscine, espaces verts et espaces de loisirs déjà prévus dans le projet.
Parkings intérieurs et extérieurs pour plus de commodité.
Bâtiment avec façades et toiture terminées, ce qui représente une économie importante en termes de travaux.
Intérieur à aménager, offrant une grande flexibilité pour l'adapter au projet approuvé ou à d'autres usages.
🔨 État d'avancement des travaux
Avancement global de 62,5 %, avec les éléments suivants réalisés :
✅ Terrassement, fondations, structure, toiture, imperméabilisation et maçonnerie terminés.
✅ Maçonnerie à 78 %.
✅ Installations (plomberie, électricité, chauffage, ventilation et télécommunications) à 50 %.
✅ Carrelage et dallage à 25 %.
🎯 Potentiel touristique
Sanxenxo et Portonovo accueillent chaque année des centaines de milliers de visiteurs nationaux et internationaux, avec un taux d'occupation hôtelière maximal en été.
La région combine :
Des plages emblématiques telles que Silgar, Canelas ou Montalvo.
Des loisirs et une restauration de premier ordre.
Du tourisme nautique, sportif et œnotouristique.
Projet adapté aussi bien au tourisme estival qu'aux escapades de week-end, au tourisme gastronomique et aux expériences le reste de l'année.
💼 Une opportunité d'investissement unique
Projet de base proposé et viable.
Projet d'exécution et permis municipal en cours.
Travaux avancés à 62,5 %, une grande partie des lots ayant déjà été exécutés.
Emplacement dans le plus grand pôle touristique de Galice.
Potentiel pour devenir un complexe de référence dans la région.
📞 Ezequiel Dovalo – iad Espagne - 6 2 2 4 8 9 7 9 8
Équipements
Extérieur
Autre
Bilan énergétique
Consommation énergétique :
Ce commerce est situé à Adina (36979).

