Bar de 170 m² à Barcelona (08001)
À propos de ce bien à usage commercial à Barcelona (08001)
🏙️ À vendre : Local commercial + Commerce + Résidence au cœur de Ciutat Vella (El Raval)
Bar musical emblématique avec appartement et licence C1 – Opportunité unique à Barcelone
Un complexe exceptionnel est à vendre : local commercial avec licence de bar en activité, commerce établi et très rentable, et un studio attenant à l’étage, le tout dans l’un des quartiers les plus dynamiques et culturels de Barcelone, El Raval, à quelques minutes des Ramblas et de la Plaça Catalunya.
Ce bar musical emblématique, référence de la scène culturelle barcelonaise, allie histoire, charme et clientèle fidèle. Une opportunité unique pour ceux qui souhaitent investir dans une entreprise avec une âme et une performance avérée.
✨ Caractéristiques principales
• Local commercial actif avec licence de bar (C1) et chiffre d’affaires démontrable.
• Emplacement stratégique : à côté de la Rambla del Raval et du Mercat de Sant Antoni.
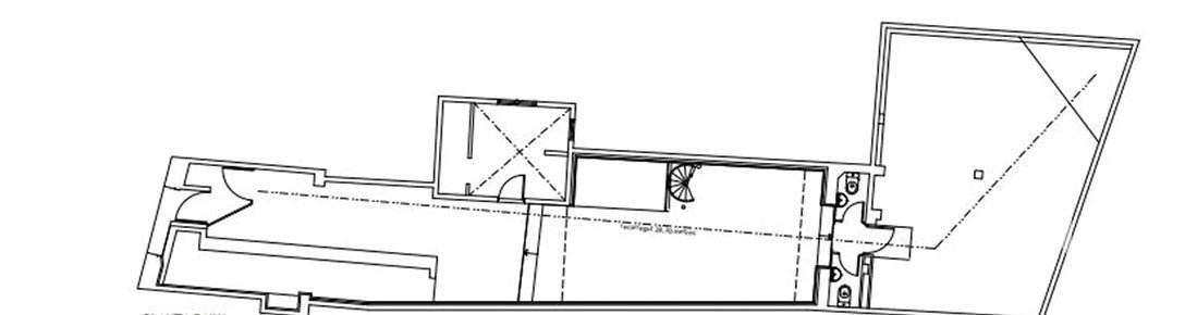
• Superficie totale d'environ 200 m², répartie comme suit :
- Salle principale de 85 m² (licence en vigueur).
- Salle secondaire de 60 m², modulable et intégrable conformément à la réglementation en vigueur.
- Studio/appartement de 38 m² avec accès indépendant depuis les locaux, entièrement équipé (climatisation, réfrigérateur, lave-linge, etc.).
• Capacité autorisée de 76 personnes, extensible lors des concerts conformément à la législation.
• Bar entièrement équipé, espaces à forte personnalité et acoustique idéale pour les événements musicaux.
• Établissement bénéficiant d'une réputation établie et d'une présence importante dans les guides culturels, les médias et les réseaux sociaux.
💡 Potentiel et opportunités
• Poursuite de l'activité de bar musical avec une programmation régulière de concerts.
• Élargissement ou diversification de l'offre : événements privés, expositions, cycles culturels, dégustations ou expériences thématiques.
• Excellente opportunité d'investissement : locaux, licence, fonds de commerce et hébergement inclus dans un seul et même package.
• Idéal pour les investisseurs et les professionnels du secteur des loisirs et de l'hôtellerie à la recherche d'un espace historique et d'une rentabilité immédiate.
💰 Prix total du complexe
750 000 €
Comprend :
• Propriété des locaux commerciaux.
• Licence (C1).
• Commerce en activité avec tous ses équipements.
• Studio entièrement meublé.
📸 Photographies
• Les images sont données à titre indicatif uniquement et permettent de visualiser l'agencement et les dimensions des locaux.
• Photographies réelles de l'espace disponibles pour les personnes intéressées.
📋 Informations complémentaires
• 200 m² construits
• Revente / en bon état
• 3 pièces + 3 salles de bain
• Activité actuelle : Bar musical / bar à cocktails
• Équipements : climatisation, système d'alarme, rangements
• Rez-de-chaussée - Local de plain-pied
Équipements
Autre
Bilan énergétique
Consommation énergétique :
Émissions de gaz à effet de serre :
Ce commerce est situé à Barcelona (08001).



