Appartement 3 chambres de 95 m² à Barcelona (08034)
Atouts
À propos de cet appartement de 3 chambres à Barcelona (08034)
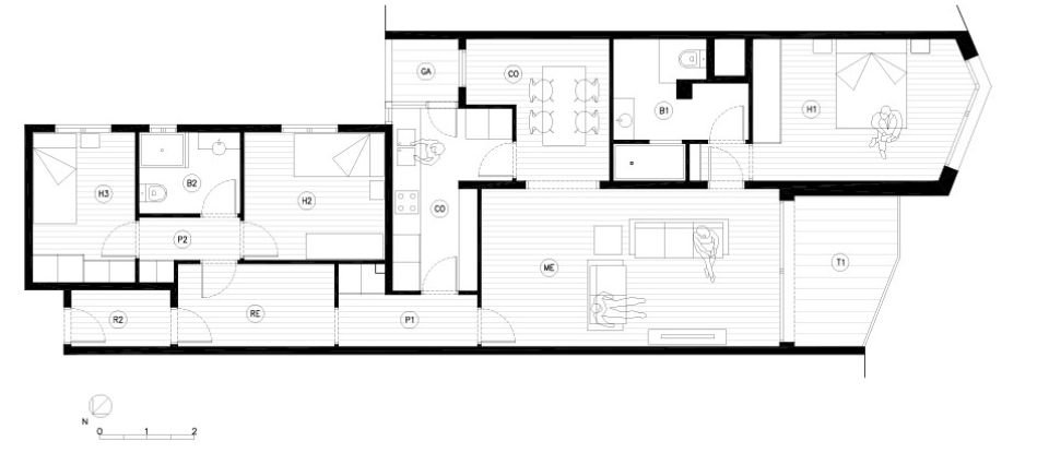
Spectaculaire et unique appartement en étage élevé avec terrasse et vues dégagées, situé dans le quartier de Sarrià, à quelques mètres des jardins de Villa Amèlia. Il allie nature, tranquillité et excellentes connexions avec le centre de Barcelone. Depuis sa terrasse orientée à l’est, on profite de vues panoramiques et du soleil du matin, créant un espace idéal pour se détendre et apprécier la vue tout au long de l’année.
L’appartement dispose de trois chambres, dont une suite très lumineuse et extérieure avec armoires encastrées et une salle de bains complète avec douche. Dans la partie intérieure, plus calme de la maison, se trouvent les deux autres chambres — l’une double et l’autre simple — toutes deux avec armoires encastrées, ainsi qu’un couloir de distribution menant à une salle de bains complète.
La cuisine comprend une grande buanderie et deux accès : l’un depuis le couloir et l’autre communiquant directement avec la salle à manger. Le salon-salle à manger est spacieux, chaleureux et très lumineux ; il constitue le cœur du logement et s’ouvre directement sur la terrasse.
L’emplacement est exceptionnel : dans le quartier de Sarrià, avec tous les services à proximité — pharmacie, centre médical, commerces, supermarchés, cafés, etc. — et à seulement dix minutes à pied de la station FGC, qui relie la Plaça Catalunya en à peine 20 minutes.
Un logement qui combine espace, confort, luminosité et tranquillité, parfait pour ceux qui souhaitent vivre dans l’un des quartiers les plus emblématiques de la ville sans renoncer au calme.
Équipements
Extérieur
Autre
Bilan énergétique
Consommation énergétique :
Émissions de gaz à effet de serre :
Cet appartement est situé à Barcelona (08034).















