Retail property of 70 m² in Logroño (26004)
About this shop/premises commercial at Logroño (26004)
📢 ¡GRAN OPORTUNIDAD! Local Comercial / Posible Vivienda en Zona Universidad de Logroño 🏘️
¿Buscas un espacio versátil y asequible? ¡Esta es tu alternativa!
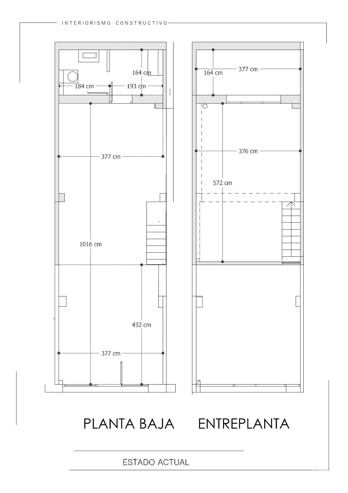
📍 Ubicación Inmejorable: Zona Universidad, Logroño. 📐 Superficie: Aproximadamente 70 m² distribuidos en dos plantas. ✨ Plus Exclusivo: Cuenta con un pequeño patio interior (ideal para ventilación, o almacenamiento).
🏠 ¡LA OPCIÓN INTELIGENTE ANTE LOS PRECIOS DE LA VIVIENDA!
Si acceder a una vivienda en Logroño se te hace cuesta arriba, este local te ofrece una solución real a un precio mucho más asequible:
Tu Merendero o Lonja: Perfecto para acondicionar como un merendero familiar o una lonja de ocio con amigos en una zona dinámica y bien comunicada.
Espacio Auxiliar para Autónomos/Pymes: Ideal como almacén, oficina, o taller auxiliar a pie de calle. ¡Separa tu vida personal de la profesional sin grandes inversiones!
Posibilidad de Cambio de Uso a Vivienda: Por sus dimensiones y distribución en dos alturas, tiene el potencial para ser reformado y transformarse en una vivienda única tipo loft. Mostranos imágenes realizadas con IA de como puede quedar reformado.
VENTAJA CLAVE: Adquiere ahora a precio de local y posteriormente gestiona el cambio de uso en el Ayuntamiento (sujeto a normativa y permisos). ¡Invierte en tu futuro hogar a bajo coste!
💰 INVERSIÓN INTELIGENTE:
Olvídate de pagar precios desorbitados. Este local te da la posibilidad de tener tu propio espacio en propiedad, con el potencial de revalorizarse si finalmente se gestiona el cambio a vivienda.
¡No dejes pasar esta oportunidad de tener tu espacio propio o de inversión en la Zona Universitaria!
📞 CONTACTA AHORA para más información o concertar una visita. ¡Te ayudamos a encontrar la mejor solución!
Ofrecemos servico de asesoramiento en interiorismo y reforma para cualquiera de las tres opciones.
Equipments
Other
Energy efficiency
Energy consumption :
This shop/premises commercial is located at Logroño (26004).

