Building plot of 165 m² in Pineda de Mar (08397)
About this land at Pineda de Mar (08397)
Land for Sale in Pineda de Mar - Potential Investment in an Excellent Location!
Discover this unique opportunity to acquire an urban plot 500 meters from the beach in Pineda de Mar, ideal for investors looking for a construction project to create a highly sought-after property. With a buildable area of 369 m² spread over 3 levels on a 165 m² plot, this property offers great potential to become a profitable asset in a prime location.
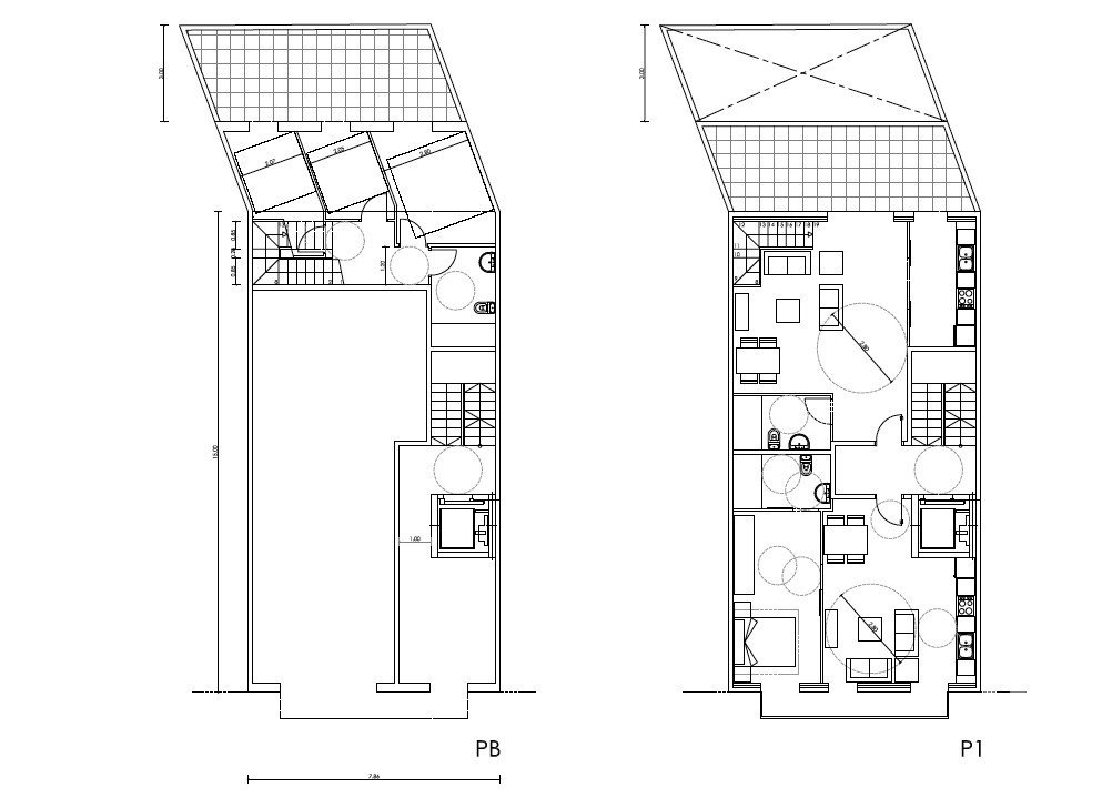
Property layout according to preliminary project:
• Ground floor commercial premises of 60 m².
• Duplex apartment on the ground floor and first floor, with 90 m² and a 21 m² patio.
• First floor apartment of 50 m².
• Two second-floor apartments of 50 m² each, with 10 m² of roof space and a 10 m² solarium.
5 minutes from the town center, 10 minutes from the beach, 15 minutes from the train station, close to the National Highway II.
Don't miss this investment opportunity! Contact us for more information and discover the potential this building in Pineda de Mar has to offer. Make your real estate project a reality!
Equipments
Outdoor
This land is located at Pineda de Mar (08397).
















