Pis 5 habitacions de 119 m² a Barcelona (08002)
Característiques
Sobre aquest pis de 5 habitacions a Barcelona (08002)
✨Oportunitat única al cor del Barri Gòtic de Barcelona✨
Habitatges exclusius a la venda en un edifici històric (sense protecció patrimonial)
En un dels carrers més emblemàtics de Barcelona, en ple Barri Gòtic, es posa a la venda un conjunt d’habitatges singulars dins d’un edifici històric en molt bon estat de conservació, que serà objecte d’una rehabilitació integral de totes les zones comunes, revaloritzant notablement cada unitat.
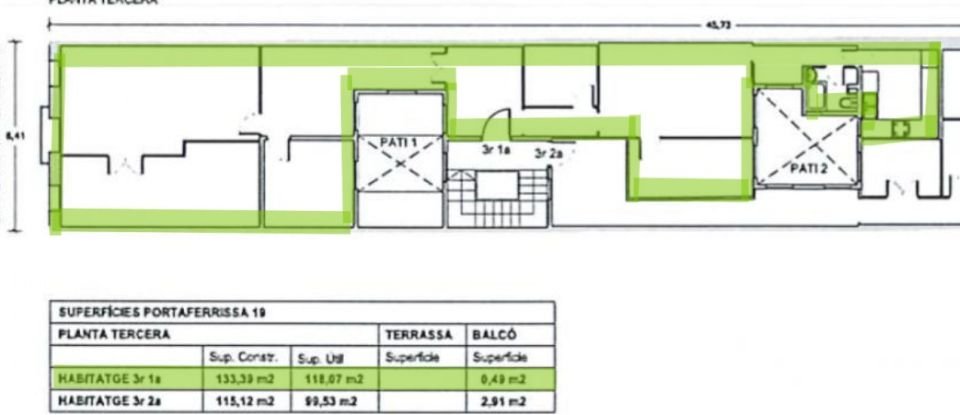
🏡 Habitatge a la tercera planta
Encantador habitatge de 133 m² construïts, situat a la tercera planta real de l’edifici. Compta amb un petit balcó exterior, ideal per gaudir de llum natural i ventilació en ple cor del centre històric.
Els espais amplis i la seva distribució permeten una reforma personalitzada, mantenint el caràcter original de l’edifici mentre s’adapta a les necessitats actuals.
L’habitatge conserva elements de gran valor arquitectònic: sostres amb bigues de fusta, finestrals excepcionals, terres hidràulics: OPORTUNITAT DE REHABILITACIÓ PER A ALT STANDING, amb elements originals de l’època.
Una excel·lent oportunitat per viure o invertir en una finca rehabilitada, amb alt potencial de revalorització en una de les zones més buscades de Barcelona.
📍 Ubicació: Carrer Portaferrissa, Barri Gòtic – Barcelona
📐 Superfície construïda: 133 m²
🌿 Espai exterior: Petit balcó mès terrassa comunitaria
Ubicació excepcional, en un edifici que la propietat rehabilitarà, augmentant el seu valor arquitectònic i comercial!
Obres previstes:
🏛️ Façanes i envolupants
Rehabilitació de la façana principal (carrer)
Rehabilitació de la façana interior
Millora dels patis exteriors
🏠 Cobertes
Restauració de les cobertes inclinades
Reforma completa dels terrats: es crearà un dels rooftops comunitaris més atractius del Gòtic
🌀 Espais comuns
Renovació i interiorisme integral de l’escala comunitària
Instal·lació d’un nou ascensor per a totes les plantes
🧱 Estructura i sanejament
Intervenció estructural
Renovació completa del sistema de sanejament
Una combinació perfecta entre l’encant de l’arquitectura clàssica catalana i les comoditats del segle XXI, en una ubicació premium al costat de la Catedral, Portal de l’Àngel i Les Rambles.
👉 No deixis escapar aquesta oportunitat. Contacta amb mi per a més informació o per concertar una visita i descobreix tot el potencial d’aquesta joia al cor de Barcelona.
📌 Nota important: El preu no inclou els honoraris d’agència (a càrrec del comprador, 3%+IVA), impostos ni despeses de notaria i registre.
Equipaments
Exterior
Altre
Consum d'energia
Consum d'energia:
Emissions:
Aquest pis es troba a Barcelona (08002).



