Casa rural 5 habitacions de 301 m² a Quintana del Castillo (24397)
Característiques
Sobre aquesta casa de 5 habitacions at Quintana del Castillo (24397)
Espectacular casa rural con encanto en Castro de Cepeda (León) — ideal como vivienda familiar o alojamiento rural
Magnífica oportunidad como residencia familiar exclusiva, negocio de turismo rural o alojamiento con encanto en pleno corazón de la comarca de La Cepeda.
El inmueble se encuentra perfectamente acondicionado para su uso como vivienda de alta calidad o para su explotación como casa rural, con todas las comodidades y un diseño que combina arquitectura tradicional y acabados de alta categoría
Descripción del inmueble:
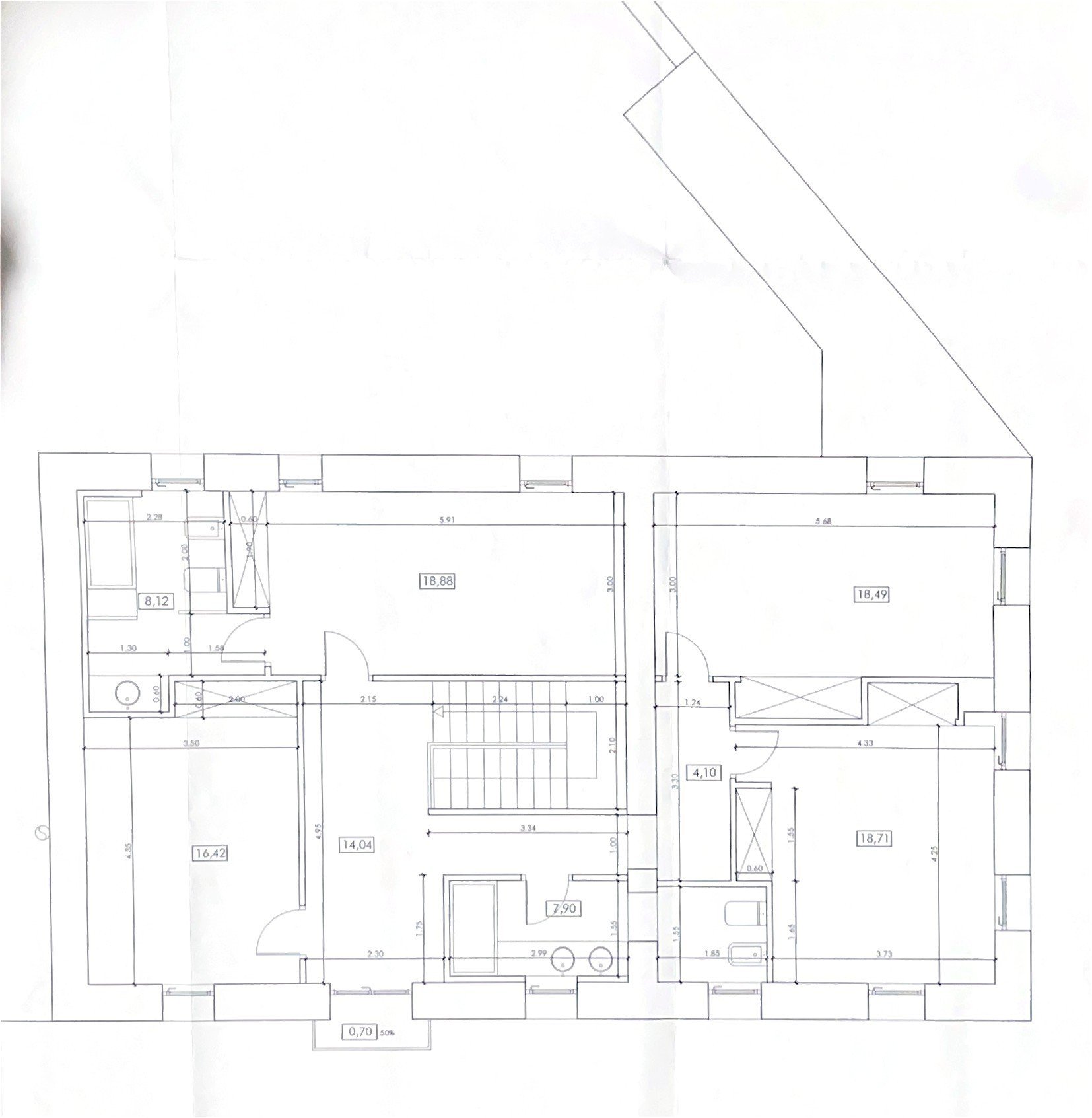
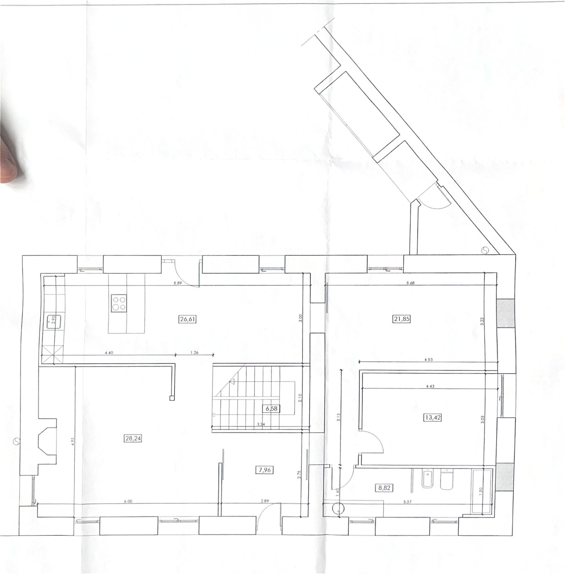
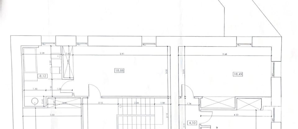
Vivienda de 300 m² construidos sobre una finca de 1.200 m², con una distribución amplia, funcional y luminosa. La construcción respeta la estética local, con muros de piedra vista, suelos de madera y pizarra y tejado de pizarra natural, logrando un equilibrio perfecto entre rusticidad y confort.
Distribución y espacios:
La planta baja alberga un gran salón principal con chimenea, cocina-comedor y biblioteca, todo en un concepto de espacios abiertos, pero con zonas perfectamente diferenciadas. En esta planta se encuentra también una habitación doble y un baño completo.
La planta superior dispone de cuatro dormitorios, todos ellos de más de 20 m², y dos baños completos. Las estancias son amplias, confortables y con una cuidada decoración.
Edificio auxiliar y exteriores:
La propiedad cuenta con un edificio de servicios que incluye garaje para tres vehículos, leñera, sala de caldera, aseo y un espacio diáfano polivalente, ideal para destinarlo a estudio, taller o zona de ocio.
El terreno de 1.200 m² alberga un jardín consolidado con piscina privada, terrazas y zonas de descanso. Dispone además de pozo propio, para riego automático y piscina.
Instalaciones y equipamiento:
• Calefacción de gasoil con dos depósitos de 1.000 litros.
• Dos estufas de pellets y chimenea de leña.
• Pozo propio en el jardín.
• Materiales nobles: piedra, madera y pizarra.
• Diseño exclusivo y acabados de primera calidad.
Ubicación y entorno:
Situada en Castro de Cepeda, a pocos minutos de Astorga, la propiedad se integra en un entorno natural de gran belleza, rodeado de praderas, bosques y montes de la comarca de La Cepeda, que ofrece numerosas rutas de senderismo, ciclismo y naturaleza, y conserva el encanto de la arquitectura rural tradicional de la zona.
A escasos kilómetros se encuentra el Embalse de Villameca, un espacio natural de gran valor paisajístico, ideal para el baño, la pesca y los deportes acuáticos durante el verano, así como para paseos y observación de aves durante todo el año.
A tan solo 20 km se localiza Astorga, ciudad monumental con el Palacio Episcopal de Gaudí, la Catedral de Santa María y una completa oferta de servicios, comercios, restauración y transporte.
A 45 minutos en coche se encuentra León capital, que dispone de aeropuerto, estación de tren de alta velocidad (AVE), hospitales, universidad y una amplia oferta cultural y gastronómica.
Una propiedad singular, que combina el encanto de la arquitectura tradicional con el diseño y la calidad de una vivienda moderna. Perfecta tanto como hogar familiar como para el desarrollo de una actividad de turismo rural de alta categoría.
Equipaments
Interior
Exterior
Altre
Consum d'energia
Consum d'energia:
Emissions:
Aquesta casa es troba a Quintana del Castillo (24397).














