Casa de muntanya 4 habitacions de 375 m² a Partida La Cometa (03724)
Característiques
Sobre aquesta casa de 4 habitacions at Teulada (03724)
Elegante villa mediterránea renovada con vistas al mar en la prestigiosa urbanización Pla del Mar, Moraira
Ubicada en una de las zonas residenciales más exclusivas de Moraira, esta magnífica villa combina a la perfección el encanto del estilo mediterráneo con el confort moderno. Construida en 1975 y completamente renovada, se encuentra en la codiciada urbanización privada Pla del Mar, a solo 300 metros del centro de Moraira, del mar y de todos los servicios. Un entorno privilegiado que ofrece seguridad, tranquilidad y cercanía al núcleo urbano.
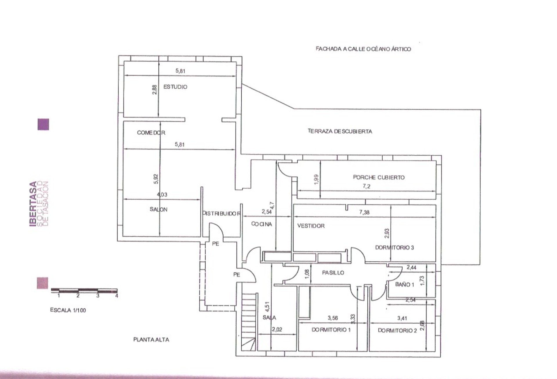
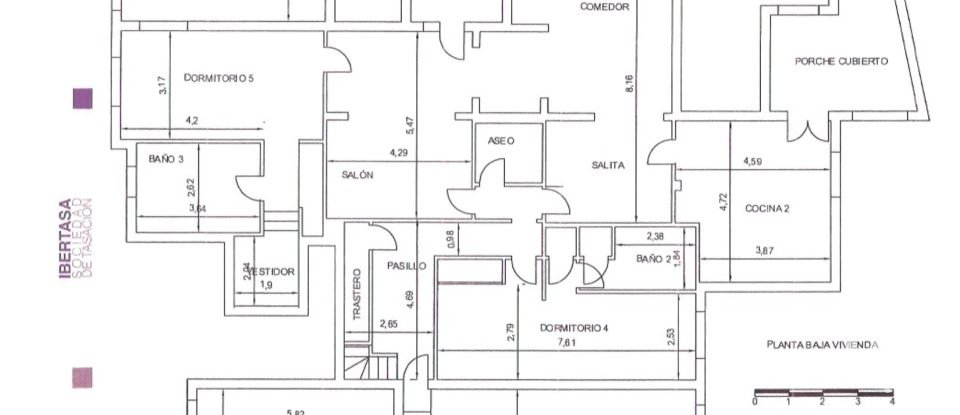
La propiedad cuenta con una superficie construida de 495 m² y una superficie útil de 375 m², distribuidas en dos plantas amplias y luminosas, conectadas por una escalera interior, y perfectamente organizadas para garantizar comodidad, funcionalidad y privacidad.
En la planta principal, un acogedor porche de entrada da acceso a la zona de día, compuesta por un salón, comedor y cocina independiente totalmente equipada. También se encuentra un aseo de cortesía y dos generosos dormitorios en suite, cada uno con su propio baño completo y vestidor. Este nivel se completa con un garaje cerrado con acceso directo, una espaciosa lavandería y un trastero.
La planta superior alberga dos dormitorios adicionales, uno de ellos con vestidor, y dos cuartos de baño completos. Dispone además de un segundo salón-comedor y de una cocina independiente. Desde esta planta se accede a una amplia terraza orientada al sur, que ofrece unas vistas espectaculares al mar y al emblemático Peñón de Ifach de Calpe. Un lugar perfecto para relajarse y disfrutar del clima mediterráneo durante todo el año.
En el exterior, la villa cuenta con una piscina privada de 39 m² y un jardín diseñado para requerir un mantenimiento mínimo, con sistema de riego automático y rodeado de vegetación que aporta intimidad y serenidad.
La urbanización Pla del Mar dispone de servicio de seguridad privada, vigilancia 24h y pista de tenis comunitaria, lo que garantiza una calidad de vida inmejorable en un entorno seguro y exclusivo.
Esta propiedad representa una oportunidad única para quienes buscan una residencia principal o una segunda vivienda en la Costa Blanca, con todas las comodidades modernas y en una ubicación privilegiada junto al mar.
Equipaments
Interior
Exterior
Altre
Consum d'energia
Consum d'energia:
Emissions:
Aquesta casa es troba a Teulada (03724).


















