Casa de pueblo 5 habitaciones de 154 m² en Carcaixent (46740)
Características
Acerca de esta casa/villa de 5 habitaciones en Carcaixent (46740)
🏡 Planta baja y Gran Terreno en Carcaixent
Déjate cautivar por esta auténtica casa de pueblo con historia, situada en Carcaixent, un enclave donde la tradición y la calma del entorno rural se combinan con la comodidad de tener todos los servicios cerca.
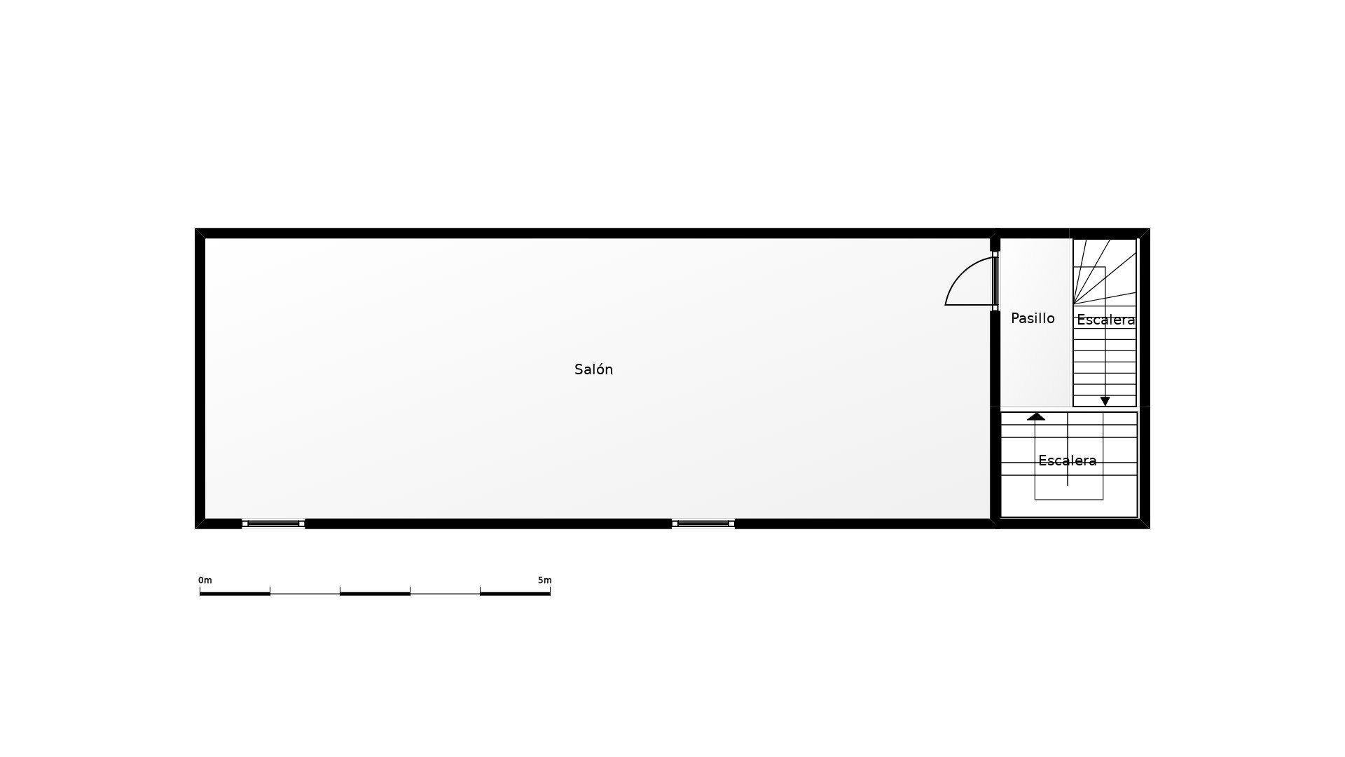
Con 154 m² construidos sobre una impresionante parcela de 6.686 m², esta propiedad ofrece un sinfín de posibilidades: desde disfrutarla como vivienda familiar hasta convertirla en un refugio de fin de semana o en un proyecto de turismo rural.
· 5 dormitorios amplios, llenos de luz natural y con el encanto de la arquitectura tradicional.
· 1 baño completo y 1 aseo, distribuidos de forma práctica para el día a día.
· Cocina con despensa y acceso directo a la terraza exterior, ideal para quienes disfrutan del orden, el almacenaje y las comidas al aire libre.
· Acogedor salón que conecta con una terraza con piscina, perfecta para disfrutar de los días soleados y de momentos de relax en familia o con amigos.
· Amplia zona ajardinada, rodeada de naturaleza y con espacio suficiente para crear diferentes ambientes al gusto del nuevo propietario.
Esta vivienda se encuentra en una zona tranquila de Carcaixent, a pocos minutos del centro urbano y de todos los servicios necesarios para el día a día: supermercados, colegios, farmacias, restaurantes y comercios locales.
La estación de tren está a solo 1 km, lo que permite conectar fácilmente con Valencia en menos de 40 minutos. Además, el Hospital de la Ribera se encuentra a 5 km, garantizando tranquilidad y asistencia cercana.
Para los amantes de la naturaleza, la montaña está a apenas 500 metros, ideal para paseos o rutas de senderismo, mientras que las playas de Cullera están a solo 30 km, perfectas para escapadas veraniegas.
El aeropuerto de Valencia se sitúa a 40 km , y el acceso a la autovía A-7 facilita la conexión con las principales localidades de la Ribera y la costa valenciana.
Construida en 1910, la vivienda se encuentra en buen estado estructural, conservando su esencia original con detalles que narran su historia. Requiere algunas mejoras, lo que te permitirá personalizarla a tu gusto y convertirla en la casa que siempre has soñado.
✨ Una oportunidad única para quienes buscan espacio, autenticidad y conexión con la naturaleza sin renunciar a la cercanía de la ciudad.
📞 Contáctanos y descubre el potencial de esta joya en el corazón de Carcaixent.
Equipos
Exterior
Otro
Esta casa se encuentra en Carcaixent (46740).










