Casa 3 habitaciones de 110 m² en San Juan de Los Terreros (04648)
Características
Acerca de esta casa/villa de 3 habitaciones en Pulpí (04648)
**SIN HONORARIOS A LOS COMPRADORES**
Chalet adosado moderno en San Juan de los Terreros (Almería)
Descubre esta magnífica vivienda seminueva (año 2020) situada en una de las zonas más demandadas de San Juan de los Terreros, a solo 15 minutos a pie de la playa y muy cerca de todos los comercios y servicios.
Este luminoso chalet adosado, con orientación sur, ofrece un diseño funcional y confortable, ideal para disfrutar del estilo de vida mediterráneo.
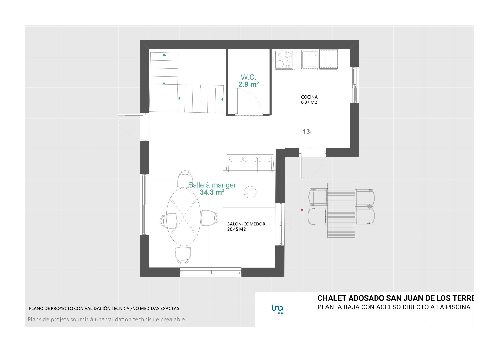
En la planta baja, encontramos un amplio salón-comedor con cocina abierta, totalmente equipada con electrodomésticos modernos. Este espacio diáfano invita a compartir los mejores momentos en familia. En esta misma planta, un aseo de cortesía aporta comodidad sin necesidad de subir al piso superior.
La planta alta alberga la zona de descanso, con tres dormitorios con armarios empotrados y un baño completo con ducha.
En el exterior, podrás disfrutar de una preciosa piscina con cascada, zona de barbacoa con fregadero y una terraza privada perfecta para relajarte o recibir invitados. Además, cuenta con un porche con espacio para aparcamiento de coche y bicicletas, garantizando seguridad y comodidad.
Una vivienda moderna, práctica y lista para entrar a vivir. ¡Ven a conocerla y enamórate de tu nuevo hogar en la costa de Almería!
Equipos
Interior
Exterior
Otro
Certificado energético
Consumo de energía :
Emisiones :
Esta casa se encuentra en Pulpí (04648).



