Casa 3 habitaciones de 217 m² en Rubí (08191)
Características
Acerca de esta casa/villa de 3 habitaciones en Rubí (08191)
Casa independiente con piscina, jardín y vistas en Rubí – Lista para entrar a vivir
Descubre un hogar pensado para disfrutar de la luz, la tranquilidad y el espacio. Esta vivienda unifamiliar ofrece diseño, comodidad y un entorno natural privilegiado, ideal para quienes buscan privacidad sin renunciar a la cercanía con el centro de Rubí.
⭐ Características principales:
162 m² construidos sobre parcela de 515 m²
Piscina privada, amplio jardín y múltiples zonas exteriores
3 dormitorios + 2 baños
Garaje para varios vehículos
Vistas despejadas y excelente orientación
🏡 Distribución:
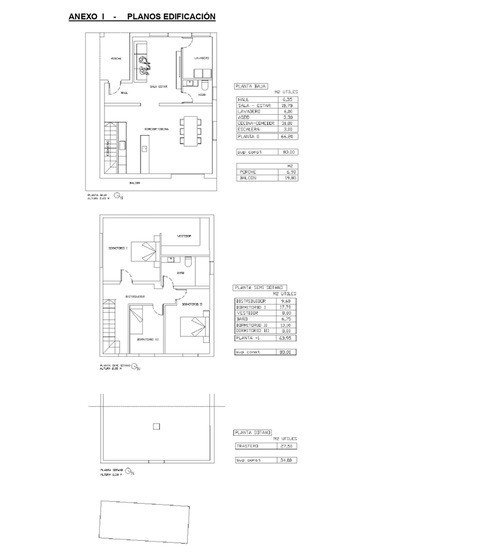
Planta semisótano (83 m²):
Gran garaje con capacidad para varios vehículos
Baño auxiliar
Espacio versátil ideal como sala de juegos, gimnasio, taller o estudio
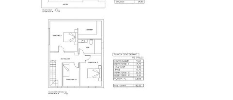
Planta baja (79,55 m²):
Recibidor
Luminoso salón-comedor con cocina abierta, estilo moderno y salida directa al
balcón-porche
Tres dormitorios con luz natural
Baño completo
✨ Acabados y confort
Carpintería interior lacada en blanco: sensación de amplitud y elegancia
Carpintería exterior de aluminio en negro con doble acristalamiento
Conexión entre plantas mediante escalera interior
🌿 Exterior para disfrutar todo el año
La vivienda ocupa 83 m² del terreno, dejando más de 420 m² de jardín y patio para relajarte o compartir momentos: piscina, zona chill out, espacio para barbacoa o incluso tu propio huerto. Todo ello en un entorno tranquilo, soleado y con total privacidad.
💫 Una oportunidad única
Una casa independiente, moderna y luminosa, con espacios amplios y exteriores de ensueño. Perfecta para familias que buscan calidad de vida, confort y naturaleza, a pocos minutos del centro de Rubí.
Equipos
Interior
Exterior
Otro
Certificado energético
Consumo de energía :
Emisiones :
Esta casa se encuentra en Rubí (08191).



